묘해가[猫偕家]는 생명과 공간, 사람과 고양이의 관계에 대해 새로운 감각으로 접근한 집이다. 이 집의 출발점은 단순한 ‘동거’가 아닌 ‘공존’이었다. 고양이들이 마음껏 뛰어놀며 창밖을 바라볼 수 있고, 사람이 그들과 부드럽게 시선을 나누며 지낼 수 있는 곳. 그러면서도 외부의 시선이나 도시의 소음으로부터는 차단된 조용한 생활을 가능하게 만드는 주거를 고민했다. 이름처럼 어딘가 묘하게 다르고 묘하게 편안한 이 집은 그렇게 고양이의 시선과 사람의 일상을 균형 있게 엮어가며 완성됐다.
안으로 열고 바깥으로 닫은 집
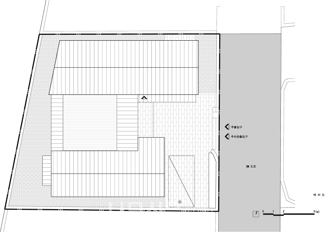
묘해가는 일산의 도심 외곽 경사지에 석축으로 조성된 택지에 자리 잡고 있다. 농지가 많은 마을의 풍경과 조심스럽게 거리를 두고 스스로의 리듬을 지키고자 하는 태도를 가진 배치다. 도로에서 진입하면 가장 먼저 만나게 되는 공간은 진입 마당과 외부 주차장이고 이어서 내부 차고와 연결되는 차량용 진입구가 있다.
전체적으로 보면 ㄷ자 형태의 건물 배치는 내부의 중정을 중심으로 구성됐다. 감싼 구조 덕분에 외부의 시선은 차단되고 내부에서는 자연광과 시선이 풍부하게 교차하는 경험이 만들어진다. 안으로 열려 있는 중정집은 단절 속에서 더 깊은 연결감을 만들어낸다.
고양이와 사람, 시선과 흐름
묘해가의 공간은 단순한 방의 나열이 아니라 고양이의 이동과 사람의 일상이 교차하는 다층적인 흐름으로 구성돼 있다.
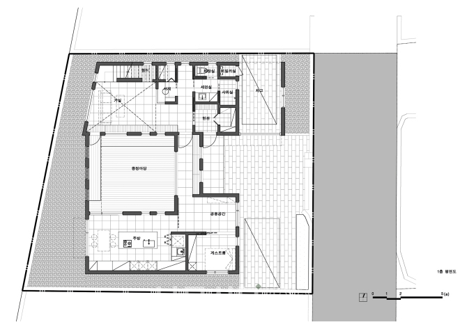
현관에 들어서면 처음 마주하게 되는 공간은 거실에 딸린 서재 공간이다. 거실로 열린 서재는 재택근무를 위한 기능을 충실히 수행하면서도 바깥을 향한 창을 통해 고양이들이 창가에 앉아 노는 모습을 볼 수 있게 설계됐다. 덕분에 일과 중에도 고양이와의 정서적 연결이 끊기지 않는다.
서재를 지나면 집의 중심이자 시각적 중심축이 되는 대공간이 펼쳐진다. 거실 공간은 2층까지 수직으로 열려 있으며 빛이 시선 높이로 흐르도록 유도됐다. 오픈 공간은 고양이들에게 수직 이동의 자유를 사람들에게는 개방감 있는 생활감을 선사한다.
현관 중문의 왼편 복도를 따라가면 중정이 펼쳐지고 공용 공간과 게스트룸이 순차적으로 배치돼 있다. 복도는 단순한 연결통로가 아니라 중정을 조망하고 감각적으로 느낄 수 있는 일종의 갤러리 같은 역할도 한다.
주방은 중정을 바라보고 있다. 식당은 후정으로 열려 있어 각각의 공간이 빛과 마당, 시선과 닿아 있다. 식당에서 중정으로 나가서 거실로 이어지는 순환 동선을 가지고 있다. 식당과 주방, 중정과 후정이 복잡하게 얽히지 않고 적절한 거리를 유지하며 열린 채 연결돼 있는 구조다.
이는 고양이와 사람 모두에게 선택적인 동선을 제공한다. 이러한 구성은 포켓도어를 활용하여 공간을 유연하게 열고 닫을 수 있도록 계획됐다. 필요할 때는 고양이만을 위한 작은 길로, 때로는 가족 모두를 위한 넓은 공유공간으로 변화된다.
거실에는 고양이를 위한 윈도우 시트가 설치돼 있어 햇살을 따라 이동하며 앉거나 누워 쉴 수 있는 자리가 된다. 또한 2층으로 향하는 일자 계단은 중간에 넓은 계단참을 두어 고양이의 휴식과 이동을 배려했고 계단참은 마치 또 하나의 작은 플랫폼처럼 기능한다.
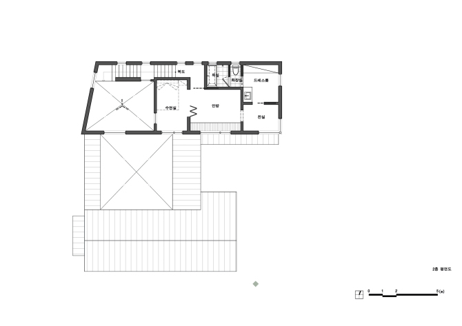
2층에는 고양이들과 함께 자는 수면실과 다용도로 사용할 수 있는 안방이 마련돼 있다. 그 앞의 전실은 외부 원경 조망이 가능한 모서리 창으로 설계돼 조용한 휴식을 위한 시각적 확장을 제공하는 공간으로 계획됐다.
드레스룸과 욕실은 기능적으로 구획돼 있다. 각 공간은 포켓도어를 통해 부드럽게 연결된다. 묘해가의 디자인은 고양이의 생활반경, 점프 높이, 창을 바라보는 습관 등을 고려한 치밀한 설계로 완성되었다.
고요함 속에 감춰진 디테일
묘해가의 외관은 절제된 박공지붕과 롱벽돌타일로 구성돼 있다. 멀리서 보면 단순하지만 가까이 다가서면 깊은 질감과 리듬이 느껴지는 벽돌 패턴과 루버의 조합이 눈에 들어온다. 특히 나무 루버는 빛의 유입을 조절하는 동시에 외부의 시선을 부드럽게 차단하면서도 내부에서는 안정된 시각적 풍경을 제공한다.
창의 위치는 고양이의 시선, 사람의 눈높이, 자연광의 유입각을 세심하게 계산한 결과이며 전체적인 외관은 단정하면서도 섬세한 긴장감을 유지한다. 이것은 과장되지 않지만 디테일에 충실한 소하건축의 태도를 고스란히 반영한 결과다.
고양이의 눈높이에서 완성된 풍경
내부 인테리어는 부드러운 흰색 톤과 밝은 우드 마감이 중심을 이루고 있다. 바닥은 청소가 쉬운 타일로 정하고 미끄럼을 고려해 신중히 선정했다. 가장 눈에 띄는 점은 각 창가마다 마련된 고양이의 자리다.
이 자리들은 낮에는 햇살이 깊게 드리우는 공간이 되고 밤에는 안락한 조명 아래 휴식처가 된다.
특히 중정을 감싸는 벽의 세 개의 수직 창은 목재루버로 감싸져 있어 빛의 그림자가 실내로 유려하게 들어온다. 이러한 빛의 흐름은 단순한 조명을 넘어서 하루의 리듬을 따라 공간의 분위기를 바꾸는 장치가 된다.
가구는 최소화했다. 공간 자체가 가구처럼 기능하도록 설계된 것. 덕분에 고양이는 장애물 없이 이동할 수 있고 사람은 더 넓은 시각적 여유를 누릴 수 있다.
묘한 일상의 온기를 품은 집
묘해가는 고양이와 사람이 서로의 존재를 존중하며 살아가는 집이다. 외부로부터는 스스로를 보호하되 내부에서는 풍요롭게 열려 있는 이 구조는 단순히 기능적 합리성을 넘어 감각적 공존을 실현한 결과다.
고양이를 배려한 배치와 구조, 사람의 생활을 고려한 세심한 디자인이 하나의 흐름으로 엮이며, 이 집은 단지 살기 위한 공간이 아닌 살아가며 함께 머무는 감각의 장소다. 이름처럼 어딘가 묘하고 그래서 더욱 따뜻한 이 집은 그렇게 고양이와 사람의 삶을 부드럽게 감싸안는다.
글=최성호 소장 / 정리=서범석 기자
PLAN
건축개요
위치▷경기도 고양시 일산동구 설문동
용도▷단독주택
건축구조▷경골목구조
대지면적▷341.00㎡(103.15평)
건축면적▷133.24㎡(40.30평)
연면적▷184.24㎡(55.73평)
1층 133.24㎡(40.30평)
2층 51.00㎡(15.43평)
건폐율▷39.07%
용적률▷49.19%
설계▷소하건축사사무소(소장 최성호)
시공▷건축주직영 / HNH건설
자재개요
외부마감▷지붕-칼라강판
외벽-에코타일 플랫
데크-이페(IPE)
내부마감▷천장-벤자민무어 페인트
내벽-벤자민무어 페인트
바닥-포세린타일
단열재▷지붕-글라스울
외벽-글라스울, 스카이텍
창호▷레하우
현관문▷커널시스텍
주방기구▷휴플랜
위생기구▷아메리칸스텐다드, 대림바스
최성호 건축사
대형 설계사무소와 아뜰리에를 거쳐 오랜 기간 실무를 쌓고 2016년부터 소하건축사사무소를 시작했다. 소박하게 보여도 살아가는 이야기를 풍성하게 담을 수 있는 집을 만들고자 노력한다. 사람의 감성이 묻어나는 인간 중심의 디자인과 내러티브가 있는 공간 창출의 개념을 담은 집을 추구한다. 대한건축사협회와 한국목조건축협회, 한국패시브건축협회 정회원이다. 목조건축 민간 감리제도인 5스타 인증위원으로 활동하고 있으며, 젊은 건축사들과 ‘건강한 집짓기’ 토크 모임인 집톡(ZIPTALK)의 구성원으로 활동하고 있다. 주요 작업으로는 대전 ‘온정당’, 오산 ‘이유있는가’, 아산 ‘담담헌’, 용인 ‘디귿집’, 청라 ‘WOOJOO’, 세종 ‘안온재’, 세종 ‘유리안’, 양평 ‘연서헌’ 등이 있다.
