문화재와 함께 하는 터전
백현보, 정겨운(명지대학교 건축학부 전통건축전공, 공간디자인전공)
백현보, 정겨운(명지대학교 건축학부 전통건축전공, 공간디자인전공)
Site Analysis
사이트는 서울 종로구 송현동 48-9 위치이다. 주변에 문화유산이 많이 근접해 있으며 유동인구가 매우 많다. 전면엔 넓은 녹지공원이 있고 외부 전시 등 많은 활동이 일어나는 곳이다.
또한, 후면엔 좁은 길이 있는데 사람들이 녹지광장으로 들어오기엔 좁고 연관성이 없다고 생각했다. 문화유산 사이에 있는 것과 주변의 접근성 그리고 사람들이 유동성을 생각하여 사이트의 문제점을 목구조와 건물의 흐름을 통해 해결해 보고자 한다.
Concept Sketch
이곳은 유동인구가 많은 지역이기에 사람들의 유입을 더 신경 쓰고 과거와 현대의 접점을 거대한 나무 공간을 통해 연결하고 싶었다. 기단 내부로 녹지를 끌어들여 중정을 만들고 그 중정 중심에서 메인홀과 시민플라자로 흩어지는 공간을 원했다. 또한, 대공간 사이에서도 녹지를 보며 사람들이 쉬고 갈 수 있고, 건물 밖으로 나올 때도 자연스러운 흐름을 갖기를 원했다.
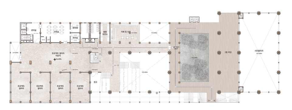
Ground Floor Plan
Circulation Diagram
Mass Diagram
1F Plan
Section Detail C-C Plan
Front Elevation Plan
Left Elevation Plan
건축개요
위치▷서울 종로구 송현동 48-9
용도▷문화 및 집회 시설
규모▷지상 3층 지하 1층
구조▷하이브리드 목구조 철근콘크리트조
자료제공=(사)한국목조건축협회 / 정리=안유영 기자
저작권자 © 나무신문 무단전재 및 재배포 금지
