좁고 가파른 골목 끝 회색빛 건물들 사이로 묵직한 사비석 외벽이 보인다. 낮은 레벨에 숨긴 주차장과 계단을 따라 올라가야 만나는 프라이빗 정원이 있는 집. 다섯 가족과 한 마리의 고양이가 오랜 세월 함께 살아온 터전에 새로 지어졌다. ‘함께 살아가는 법’으로 다시 설계한 공간이다.
가끔은 떨어져 있고 싶은, 함께의 집
건축주 부부와 세 남매, 그리고 고양이가 집을 지킨다. 가족끼리 잘 지내지만 이전 집은 ‘너무 열려 있었다’고 했다. 방 안에서도 거실의 모든 대화가 들렸던 것. 새집의 첫 번째 조건은 ‘공용과 사적 공간의 확실한 구분’이었다.
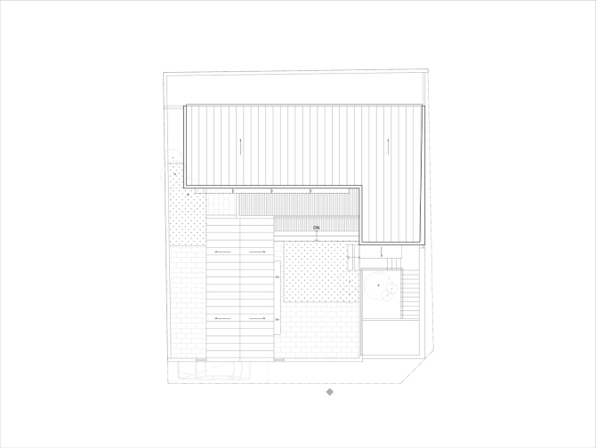
경사지를 역이용한 주차장
대지는 좁고 경사는 심했다. 하지만 이 집은 그 단점을 장점으로 바꿨다. 주차장을 대지의 가장 낮은 곳에 넣고 건물보다 2m 안쪽으로 들여 자연스러운 처마를 만들었다. 비싸고 답답한 벙커형 대신 시공 기간과 비용을 절약한 합리적인 해법이었다.
도시 속에서 오래 견디는 얼굴, 사비석
외관은 집의 첫인상이다. 건축주는 보기 좋으면서도 손이 많이 가지 않는 재료를 원했다. 선택은 사비석. 표면이 부드럽고 색감이 고급스러워 모던한 도심 속에서도 위화감이 없다. 석재 고유의 미묘한 색 변화가 햇빛과 시간에 따라 달라져 하루에도 여러 표정을 보여준다.
사비석은 비와 먼지에 강하고 장기간 사용해도 색이 쉽게 바래지 않는다. 시야에서 잘 보이지 않는 후면은 어두운 톤 스타코를 사용해 예산 절감과 관리 편의성을 동시에 확보했다.
세부 디테일도 놓치지 않았다. 창호 주변엔 돌출 후레싱을 둘러 비와 눈이 외벽에 직접 닿지 않게 했고 현관과 큰 창 앞에는 돌출 처마를 빼서 생활 편리성을 높였다.
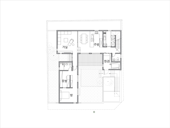
생활의 무게 중심_1층
1층은 가족의 일상 대부분이 머무는 공간이다.
현관 넓은 현관에 내부 창고를 붙여 외부 짐을 정리할 수 있게 했다. 양쪽으로 열리는 양개형 중문은 동선에 여유를 주고 바닥 전체에 시공된 원목마루는 집 안에 들어서는 순간 부드러운 촉감을 전한다.
주방 메인 주방은 요리 중심, 세탁실에 배치된 보조 주방은 간단 조리와 설거지용. 두 개의 주방이 집안일의 동선을 나눠 효율을 높인다.
거실 거실과 주방 사이에 단차를 두어 공간을 시각적으로 분리했다. 높아진 거실 층고는 개방감을 키우고, 실링팬이 공기 순환과 포인트 역할을 동시에 한다. 다이닝과 거실 사이에는 나무 기둥 파티션을 설치해 ‘연결되면서도 분리된’ 느낌을 준다.
부부침실 부부침실 문에는 반려묘 전용 캣도어가 있다. 안방-드레스룸-욕실이 하나의 순환 동선으로 이어져 실생활에서 효율적이다. 아내의 취향을 반영한 녹색 벽지는 창밖 정원과 어울리며, 자연스러운 휴식감을 준다.
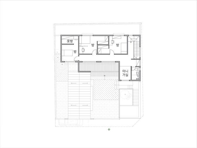
세 남매의 세상_2층
2층은 세 남매를 위한 공간이자 공용의 여유를 위한 층이다.
미니거실 세 남매가 모여 이야기하거나 게임을 즐기는 공간이다. 사계절 내내 쾌적하게 쓰도록 냉난방 시스템을 완비했다. 박공지붕 구조를 그대로 드러낸 천장은 공간을 더 넓게 느끼게 하고 오동나무 합판 마감으로 따뜻한 질감을 더했다.
자녀방 1·2·3 각 방은 벽지와 컬러를 달리해 개성을 살렸다. 누군가는 차분한 베이지 톤으로 누군가는 활기찬 옐로우 톤으로. 가구 배치와 조명까지 각각의 라이프스타일에 맞췄다.
프라이버시와 연결감 2층 복도는 방과 미니거실을 자연스럽게 연결해 문을 열면 가족의 목소리가 닿지만 필요할 땐 완전히 독립된 생활이 가능하다.
계단 끝의 비밀_정원
대문을 지나 계단을 오르면 시야가 탁 트인다. 건물이 정원을 감싸 안아 외부 시선이 닿지 않는 구조다.
법적 조경 면적을 채우는 동시에 꽃과 나무를 한곳에 집중시켜 관리 효율을 높였다. 계절마다 색이 달라지는 이 정원은 가족에게 ‘나만의 공원’이 된다. /나무신문
건축개요
위치▷대구 수성구 만촌동
대지면적▷301.5㎡ (91.2평)
건물규모▷지상 2층
거주인원▷5명(부부, 자녀 3)
건축면적▷128.98㎡ (39.06평)
연면적▷199.19㎡ (60.25평)
구조▷기초-철근콘크리트 매트 기초
지상-벽:중목구조
설계, 시공▷수미가종합건설
정원 디자인▷가든웍스 김원희 작가
사진▷건축사진가 윤동규 작가
자재개요
외부 마감재▷사비석+스타코
단열재▷수성연질폼 105mm
창호재▷독일식 3중 유리 창호 (알루플라스트)
현관문▷YKK AP 단열 현관문
지붕▷리얼징크
실내 도어▷EIDAI 수입도어
바닥 마루▷EIDAI 수입마루
주방가구, 붙박이장▷아날로그 팩토리
수미가종합건설 |
수미가는 ‘간결함의 멋·안전·책임감’을 핵심 가치로 삼고 있다. 불필요한 장식을 덜어내고 최소한의 형태 속에서도 삶을 충분히 즐길 수 있다는 미의식을 담아낸다. 일상 속에서 마주하는 아름다움을 수미가의 간결한 공간을 통해 느낄 수 있다. 또 이 아름다움이 순간에 그치지 않도록 30년 경력의 일본인 건축 명장과 함께 처음 설계부터 완공까지 전 과정을 책임진다. 고객이 안심하고 오래도록 살아갈 수 있는 집을 만든다는 약속, 건축으로 삶을 설계하는 주택 브랜드다.
