‘틈새 집’은 서울의 구도심 주택가, 10년 넘게 방치되어 온 경사지의 자투리땅에서 시작된 실험이었다. 이 집은 도시의 흐름에서 소외되고 잊혀진 ‘틈’을, 새로운 가능성의 공간으로 바라보는 시선에서 출발했다.
이 땅은 면적이 작고 경사진 탓에 빌라나 다가구 주택 개발을 선호하는 소위 ‘업자들’의 관심 밖에 있던 곳이었다. 오히려 그 점이 건축가인 건축주에겐 기회였다. 40년 넘게 단독주택이 주를 이루었던 이 일대는 노후화로 기능을 잃어가며 점차 빌라 개발업체들의 무대로 변해가고 있었다. 하지만 다행스럽게도 이 땅은 빌라를 짓기에는 너무 작고 비효율적이라 그런 흐름에서 비껴나 있었다.
그 ‘틈’은 누군가에게는 불가능한 부분이었지만 건축디자이너에게는 창의적으로 개입할 수 있는 여지이자, 도심지 주택의 재생 가능성을 다시 바라볼 수 있는 가능성이었다.
‘틈새 집’이라는 이름은 바로 이 건축의 출발점이자 철학을 담고 있다. 물리적으로는 구도심의 틈을 채우는 집이지만 더 넓게는 도시 안의 공백과 잉여공간을 창의적으로 재해석하고, 소규모 건축이 도시 재생에 기여할 수 있다는 새로운 가능성을 보여주는 집이다.
건축주이자 건축가의 가장 개인적인 두 번째 해법
건축주는 두 권의 책을 집필한 건축전문 작가이자, 공간을 통해 이야기를 짓는 건축디자이너이다. 그는 오랜 시간 목조건축의 지속가능성에 주목해온 전문가로 특히 도심 속에서의 목조건축이 환경적·구조적으로 도시 재생에 가장 적합한 해법이라고 믿는다.
이번 ‘틈새 집’은 그런 그의 철학이 가장 개인적인 방식으로 구현된 프로젝트다. 아내 그리고 실용음악과 입시를 준비 중인 딸이 함께 사는 집. 가족을 위한 집이기에 그는 어느 때보다 깊이 고민했고, 오래 바라보며 집의 구조와 감성을 다듬었다. 좁고 기울어진 틈새의 땅 위에 작지만 단단한 목조건물을 통해 가족의 일상과 도심 주거의 가능성을 함께 설계한 셈이다.
이 집은 건축주가 두 번째로 지은 집이다. 첫 번째 집에서는 하고 싶었던 것을 충분히 담아내지 못했다는 아쉬움이 늘 마음 한 켠에 남아 있었다.
그래서 경사지에 30평 남짓한 작고 어려운 땅이었지만 그 안에서 그와 가족이 꿈꿨던 집의 조각들을 하나씩 실현해갔다. 대지를 처음 마주했을 때 떠올랐던 상상부터 시공 과정에서 생겨난 새로운 아이디어까지, 모든 가능성을 주저하지 않고 담아냈다.
불필요한 것은 과감히 덜어내고 꼭 필요한 부분엔 아낌없이 마음을 쏟았다. 그에게 이번 집은 단순한 구조물이 아닌 가족의 일상을 품고 성장해 나갈 수 있는 ‘삶의 그릇’이 되기를 바랐다.
사는 데 불편함이 없고 시간이 흘러도 편안한 집
“첫 집이었던 듀플렉스 주택에 8년 동안 살면서 늘 마음 한 켠에 아쉬움이 자리 잡고 있었다. 언젠가 다시 집을 지을 기회가 온다면 그때는 정말 나와 가족의 라이프 스타일을 오롯이 품을 수 있는 그런 집을 지어보고 싶었다.”
서울 강북의 자투리 대지 위에 지어진 이번 집은 가족을 위한 집이자 자신의 건축 철학을 오롯이 담아낸 결정체다. 이번 프로젝트는 첫 번째 집과는 전혀 다르게 접근했다. 첫 삽을 뜨는 시점부터 외부 프로젝트를 전면 중단하고 6개월 동안 현장 인근에 임시 거처를 마련해 프로젝트 매니저(PM)로 매일 현장에 상주하며 프로젝트를 진두지휘했다.
터파기부터 골조, 마감에 이르기까지 공정별 시공팀과 일일이 얼굴을 맞대며 공정 하나하나를 직접 확인하고 소통하며 집을 완성해갔다.
그가 이번 집을 통해 가장 명확하게 바라는 것은 단 하나였다. ‘실제로 사는 데 불편함이 없고, 오랜 시간이 흘러도 편안한 집’. 겉모습보다 중요한 건 ‘기능에 충실한 가성비 높은 집’이라는 원칙이었다. 건축디자이너로서 욕심내고 싶은 부분은 분명 있었다. 하지만 현실적인 예산의 한계를 분명히 인지했고 그 안에서 최선의 선택과 집중에 충실했다.
외관은 최대한 단순하고 절제된 형태로 설계하고 사후 유지관리까지 고려한 안정적인 외장 재료를 사용했다. 지나치게 눈에 띄는 외장재는 지양하고 재료와 형태 모두 주변 풍경 속에 조용히 스며들 수 있기를 바랐다.
구도심의 오래된 주택들과 이질감 없이 어우러지는 것, 그것이 이 집이 지닌 외형의 가장 큰 미덕이다. 다만 내부 공간의 생활환경의 질을 높이는데 집중했다. 외관을 예쁘게 돋보이게 하는 데 들어가는 비용은 줄이고 거주 환경의 쾌적함과 안락함을 높이는 데 아낌없이 투자했다. 1층은 주거와 완전히 분리된 건축주의 독립적인 작업실 공간을 두었다.
수직과 수평으로 분리된 아름다운 거리두기
좋은 집은 어디에 지을 수 있을까. 건축주는 서울 강북 외곽 지역을 중심으로 시간 날 때마다 부지를 둘러봤다. 예산이라는 현실적 조건 속에서 단지 ‘땅을 사는 것’이 아니라 ‘집의 가능성을 발견하는 일’을 하고 있었다. 그렇게 만난 지금의 부지. 큰 도로에서 살짝 벗어나 있고 약 2.5m의 높이차가 있는 경사지다.
언뜻 보면 집을 짓기 까다로운 땅처럼 보이지만 건축주이자 건축주인 그는 이곳을 보자마자 ‘좋은 집이 지어질 땅’이라고 확신했다. 남쪽엔 다세대 건물이 있어 햇볕이 다소 가려질 수 있었지만 동쪽과 북쪽으로는 시야가 탁 트여 있었다. 그는 그 열린 방향이 모든 제약을 이겨낼 열쇠가 되어줄 거라고 믿었다.
대지의 모양은 마치 장화를 닮았다. 평범한 설계로는 쉽게 풀기 어려운 형태였다. 하지만 건축가는 오히려 그 형태를 그대로 안고 가기로 했다. 경사의 높낮이를 따라 흐르듯 단면을 구성한 ‘스킵 플로어(Skip floor)’ 방식은 대지와의 대화를 통해 나온 결과였다.
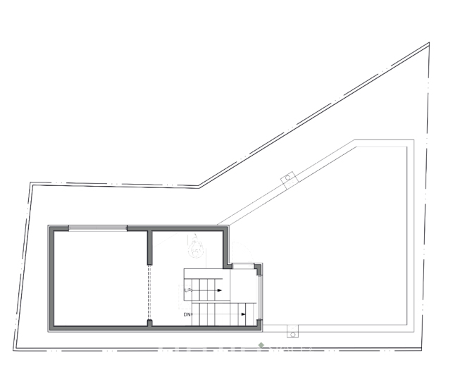
1층은 땅의 절반 정도만 계획해 터파기와 옹벽 보강 같은 토목공사 비용을 줄였고, 2층부터 4층까지는 가족의 삶을 담아내는 주거 공간으로 채웠다.
평범한 설계를 거부하는 장화 모양의 대지
무엇보다 창문의 방향에 대한 선택이 고민이었다. 남쪽으로 3층 다가구가 막고 있어 프라이버시 문제로 남쪽 창을 과감히 포기하고 동쪽으로 창을 내는 어려운 선택을 강행했다. 이 결정은 결과적으로 ‘신의 한 수’가 되었다.
동쪽의 넓은 전망과 더불어 채광과 환기, 공간감까지 모두 만족시키는 동쪽 창문 덕분에 집 안에는 늘 은은하고 맑은 빛이 흐른다. 하루의 시작을 밝혀주는 이 빛은 가족에게 이 집이 얼마나 따뜻한 공간인지를 조용히 말해주고 있다.
이 집의 가장 큰 구조적 특징 중 하나는 ‘스텝 하우스(Step House)’ 방식으로 설계되었다는 점이다. 대지의 경사를 그대로 받아들이며 각 층마다 약 1미터씩 레벨 차이를 두었다. 그 결과로 각 층에는 자연스럽게 스킵 플로어(Skip Floor) 구조가 생겨났다. 이 독특한 단차들은 단지 수직적인 층을 쌓는 방식이 아니라 공간 안에 리듬과 흐름을 더하는 장치가 되었다.
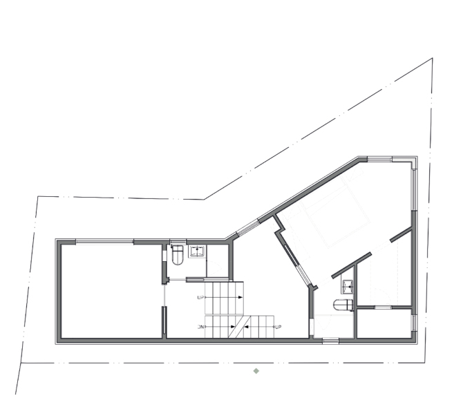
2층에는 주방과 식당이 자리하고 그보다 한 단계 위에는 거실이 놓였다. 동선은 분리되었지만 시선은 이어지고, 거실에서 식당을 내려다보는 풍경은 가족 간의 소통을 자연스럽게 유도한다. 3층에는 안방과 자녀 방이 자리잡고 있다. 이 두 공간 역시 1미터 정도의 단차로 나뉘어 각자의 공간감을 지키면서도 완만한 계단으로 연결되어 부드럽게 이어진다.
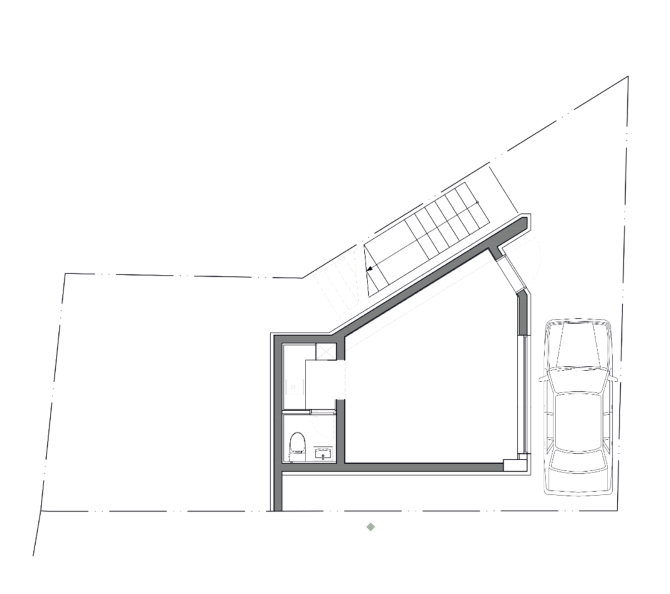
4층은 아직 사용 목적이 정해지지 않은 알파룸이 자리하고 있다. 이 층에는 루프탑 정원으로 향하는 계단과 미니 주방도 함께 계획되었다. 이 작은 주방은 언젠가 북한산과 도심의 전경을 배경 삼아 옥상에서 가족이나 친구들과 파티를 즐기기 위한 준비이기도 하다.
어느 계절이든 저녁노을이 지는 시간에 간단한 음료를 꺼내 들고 루프탑으로 향하는 모습을 상상하면 이 집의 설계가 얼마나 섬세한 배려 위에 놓였는지를 느낄 수 있다.
빛의 계획도 섬세한 조용하고 따듯한 실내
인테리어는 깔끔함과 따뜻함 사이의 균형을 섬세하게 유지하고 있다. 전체적으로는 밝고 정제된 크림 톤을 바탕으로 삼되 곳곳에 우드 톤을 적절히 조합해 차가울 수 있는 인상을 따스하게 덮어주었다. 원목이 지닌 자연스러운 색감과 질감이 더해지며, 실내는 한층 부드럽고 편안한 분위기를 만들어낸다.
빛의 계획도 섬세하다. 천창과 넓은 창문을 통해 최대한 자연광이 깊숙이 들어오도록 유도했고 인공조명은 주광색(하얀 빛)을 피하고 전구색(따뜻한 노란빛) 위주로 구성해 화이트 톤의 단조로움을 보완했다. 이처럼 눈에 띄지 않게 배려된 디테일들이 집 안 전체에 조용한 온기를 퍼뜨린다.
특히 '장화의 발목' 부분에 해당하는 스킵 플로어 공간은 사각형 평면의 정형성을 벗어난 독특한 구성으로 시선을 사로잡는다. 예컨대 주방은 거실에서 바라보면 식탁만 살짝 보이지만 몇 계단을 오르면 왼쪽 벽 너머 숨겨진 공간에 주방이 자리하고 있는 것을 알게 된다. 좁은 공간이지만 자칫 쓸려나갈 수 있는 여유 공간까지도 영리하게 활용한 것이다.
벽면은 일직선으로 뻗기보다는 면마다 각도를 달리해 구성되어 있는데 이 구조는 시선에 재미를 더하고 공간을 더욱 풍부하게 만든다. 마치 무심한 듯 치밀하게 계획된 이 집의 실내는 기능과 감성이 조화롭게 어우러진 공간이란 어떤 것인지를 잘 보여준다.
오래도록 든든하게 버텨주는 집을 위한 검증된 자재
겉모습은 시간이 지나면 조금씩 바래지기 마련이다. 하지만 건축주는 이 집이 오래도록 든든하게 버텨주길 바랐다. 그래서 외벽은 수분으로 인한 변색이나 하자 걱정이 적으며 오랜 시간 다양한 현장에서 검증된 자재를 우선으로 고려했다.
특히 건식 시공이 가능한 제품(세라믹 사이딩)을 선택함으로써 공정도 안정적으로 진행할 수 있었다. 눈에 띄는 장식보다 시간을 견디는 성실한 외피가 이 집에 더 어울린다고 느꼈다.
지붕은 사실 외관에서는 보이지 않는 부분이다. 하지만 건축가는 보이지 않는 부분일수록 더 세심해야 한다고 생각했다. 특히 4층 높이에 자리한 지붕은 여름에는 복사열을 차단하고, 겨울에는 열손실을 줄이는 역할을 충분히 해내야 했다. 그래서 두꺼운 단열층과 열반사 필름을 꼼꼼히 적용했다. 눈에 보이지 않아도 이 집의 공기와 온기를 지켜주는 아주 중요한 ‘지붕’의 역할이기 때문이다.
정원은 땅의 특성 때문에 더 고민이 많았던 부분이었다. 경사진 대지 위라 지상에서는 정원을 만들기 어렵다는 걸 알았다. 그래서 오히려 그 제약을 기회 삼아 옥상에 루프탑 정원을 따로 계획했다.
이 집에서 가장 높은 자리에 가장 시야가 열려 있는 공간이다. 맑은 날이면 멀리 북한산 능선이 펼쳐지고 도심의 풍경이 부드럽게 시야에 담긴다. 미니 주방도 함께 두어서 언제든 가족과 가볍게 차를 마시거나, 가까운 사람들과 작은 파티를 열 수 있도록 했다. 이 모든 공간은 결국은 살아가는 사람에게 다정한 배려로 남기를 바라는 마음으로 하나하나 만들어졌다.
PLAN
‘공간이 사람을 바꾸고, 공간이 삶을 가꾸어간다’
건축이 사람에게 미치는 영향은 생각보다 훨씬 깊고 크다. 어떤 공간에 머무느냐에 따라 삶의 리듬이 바뀌고 일상의 질감도 달라진다. 햇빛이 잘 들고 신선한 공기가 자연스럽게 순환되는 집은 그 자체로 치유의 힘을 갖는다.
건축주는 처음부터 그런 공간을 만들고자 했다. 단순히 예쁜 집이 아닌 머무는 이의 삶을 편안하게 해주는 집. 빛과 바람이 자연스럽게 드나드는 구조를 고민했고 그 결과 현재 가족 모두가 그 이점을 매일같이 체감하고 있다. ‘공간이 사람을 바꾸고, 공간이 삶을 가꾸어간다’는 사실을 이 집은 조용히 증명하고 있다. /나무신문
건축개요
위치▷서울시 도봉구 쌍문동
대지면적▷109㎡ (32.97평)
건물규모▷지상 4층
구조▷1층 철근콘크리트, 2~4층 경량목구조
건축면적▷61.02㎡ (18.46평)
연면적▷153.54㎡ (46.45평)
1층: 26.51㎡ (8.02평)
2층: 57.92㎡ (17.52평)
3층: 53.42㎡ (16.16평)
4층: 15.69㎡ (4.75평)
단열재▷아이씬폼 / 스카이텍
마감재▷외벽: 릭실 세라믹사이딩
지붕: 칼라강판
창호: 유로레하우 시스템 창호
천장: 친환경 페인트
벽지: 나무앤케어 천연벽지
바닥: 원목마루
사진작가▷함영인
건축가 소개 | 최재철 초이스건축 대표
영국 드몽포트(De Montfort)대학교와 에딘버러 네이피어(Edinburgh Napier) 대학교에서 인테리어 디자인 및 목재산업경영학 석사 학위를 각각 수료했다. 이후 영국 대형목조건축회사 선임디자이너로 일하며 단독주택, 5층 공동주택, 학교, 호텔, 리조트 등 다양한 목조건축 프로젝트의 설계 및 시공 관리를 총괄했다. 인하대학교 건축대학원 외 5개 학교에서 겸임교수로 목조주택 이론을 가르쳤으며, 국내 23개 대학교 건축관련 학과에서 목조주택 설계·시공 워크샵을 진행했다. 미국공인 홈인스펙터 자격을 갖고 있다. 현재 초이스건축을 운영하며 목조건축에 관한 설계 및 시공 컨설팅, 기술서적 출간, 전문인력양성 교육, 기술 통역 등 다양한 분야에서 활동하고 있다. 저서로는 ‘집짓기 전에 반드시 알아야 할 101’, ‘한눈에 보는 목조주택’ 등이 있다.
