양평의 한 단독주택단지 안쪽. 도로보다 한 뼘 높게 올라선 땅에 낮고 수평적인 집 한 채가 자리 잡았다. 멀리서 보면 크게 튀지 않는 집. 하지만 가까이 다가갈수록 차분하게 정돈된 매스와 박공지붕, 그리고 그 아래 넉넉하게 뽑아낸 툇마루와 테라스가 주변과는 또 다른 분위기를 만든다. 이 집은 두 명의 어린 자녀를 둔 부부가 오랜 고민 끝에 지은 목조 단층주택이다.
묻고 또 묻던 건축주, 설계의 단초가 되다
설계 초기 건축가는 서술형으로 구성한 30여 개의 문항이 담긴 질문지를 건축주에게 건넸다. 단순한 선호도를 묻는 설문이 아니라 부부가 어떤 공간에서 어떤 삶을 살아가고 싶은지를 스스로 정리할 수 있게 하는 도구였다. 부부는 이 설문에 응답하는 데에 오랜 시간을 들였다. 아내는 촘촘하게 답을 써내려 갔고, 남편은 자동차를 위한 넓은 차고를 가장 먼저 언급했다.
첫 만남에서부터 목조주택에 대해 숱한 질문을 먼저 쏟아낸 것은 건축주 부부였다. 건축가는 그 태도에서 오히려 확신을 얻었다. 집에 대해 진지하게 고민하는 사람이야말로 좋은 집을 지을 수 있다고 믿기 때문이다. 그렇게 질문과 대답이 오가며 신뢰 또한 쌓여갔다. 그 신뢰는 결국 건축가에게 ‘튀지 않고, 자연스럽게 살아지는 집’이라는 명확한 설계 지침이 되었다.
지형이 만든 답, 지형에 응답한 집
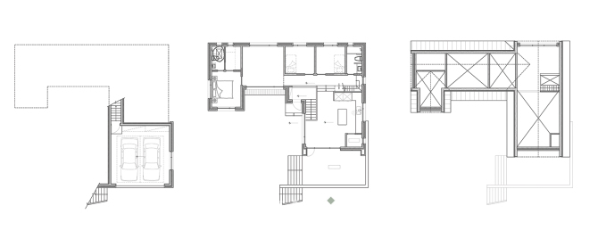
부지는 레벨 차가 거의 없는 평지였지만 북쪽은 숲, 남쪽은 도로와 접하며 레벨 차가 1.8미터 정도 나는 조건이었다. 처음에는 북쪽의 자연스러운 숲이 뒷마당이 되어줄 것이라 생각하고 창호와 외부 공간을 구성했지만, 얼마 지나지 않아 숲은 사라지고 3미터 넘는 옹벽이 들어섰다.
이와 같이 예상치 못한 변화에도 설계는 유연하게 조정됐다. 북쪽 숲 마당 대신 남쪽 도로의 낮은 레벨은 오히려 설계에 유리한 조건이 됐다. 지하에 차고를 넣고 그 위로 이어지는 1층 실내는 자연스럽게 스플릿 플로어(split floor) 구조로 풀었다. 주방과 식당이 있는 상부 공간과, 거실과 침실이 있는 하부 공간이 리듬을 만들었다. 이로써 단층 주택에서 흔히 느껴지는 평면적 단조로움을 없앴다.
수평과 수직의 변주, 자연스러운 공간감
양평 주택의 인테리어는 전체적으로 수평적인 흐름을 유지하면서도 천장의 높낮이를 통해 공간감을 확보하는 방식으로 구성되었다. 주요 생활공간인 거실, 침실, 욕실은 단층 매스로 묶어 구성했고, 이 공간에는 경사도가 낮은 박공지붕을 얹었다.
특히 실내 천장은 오픈 구조로 처리해 지붕의 경사와 구조가 그대로 드러나도록 했다. 덕분에 낮고 길게 뻗은 매스 안에서도 천장의 변화가 공간의 리듬을 만들었다. 또 거실에서 가족실, 주방까지의 동선이 단조롭지 않은 흐름으로 이어졌다. 단층 주택에서 흔히 느껴지는 ‘낮고 평평한 공간’이라는 인식을 깨고, 수직적으로도 입체감 있는 체험이 가능하도록 설계했다.
공간 배치에서도 층위를 두었다. 스플릿 플로어 구조 덕분에 거실과 침실이 있는 하부 공간과 주방과 식당이 있는 상부 공간이 서로 시선을 주고받는다. 특히 식당은 대지보다 약 1미터 높은 위치에 있어 창밖으로 정원을 내려다보는 시야가 자연스럽게 확보된다.
집의 바깥도, 하나의 방처럼
이 집의 외부 공간은 단지 ‘건물의 부속물’이 아니다. 실내 공간과 맞물려 일상의 확장선처럼 설계되었다. 실내와 외부의 관계는 문턱이 아니라, 일관성 있는 흐름이 된다.
주방과 식당은 타일로 마감된 테라스로 부드럽게 이어진다. 날이 좋은 날이면 이 테라스는 야외 식사나 바비큐 공간이 되고 아이들의 놀이터가 된다. 테라스는 외부의 시작이면서도 실내의 연장인, 이 집만의 ‘중간 지점’이다.
거실 앞에는 넉넉한 크기의 툇마루가 놓였다. 가족 네 명이 함께 앉아도 여유 있는 이 공간은 앞마당을 조망하며 때로는 작은 휴식의 무대가 되기도 한다. 그 위로는 약 1미터 가량 깊이 뽑아낸 처마가 드리워져 여름에는 햇빛을 막고 겨울에는 낮은 각도의 햇빛을 끌어들인다.
가족실은 앞마당과 뒷마당을 모두 향해 열려 있다. 남북으로 넓은 창을 내어 실내 어디에서든 계절의 변화와 식물의 움직임을 감상할 수 있게 했다. 이처럼 외부 공간은 ‘보이는’ 풍경이 아닌, ‘함께 살아가는’ 장소로 설계되었다. /나무신문
PLAN
건축개요
위치▷경기 양평군 백안리
대지면적▷406㎡/123평
건물규모▷지상 1층
구조▷경량목구조
건축면적▷125.43㎡/37.94평
연면적▷165.18㎡/49.97평
지하층 : 42.25㎡/12.78평
1층 : 122.93㎡ / 37.19평
단열재▷크나우프 그라스울 단열재
마감재▷외부 : 롱브릭 타일
지붕 : 칼라강판
창호 : 유로레하우 시스템 창호
천장 : 벤자민무어 페인트
벽지 : 나무앤케어 천연벽지
마루 : 원목마루
사진작가: 함영인
최재철 초이스건축 대표
영국 드몽포트(De Montfort)대학교와 에딘버러 네이피어(Edinburgh Napier) 대학교에서 인테리어 디자인 및 목재산업경영학 석사 학위를 각각 수료했다. 이후 영국 대형목조건축회사 선임디자이너로 일하며 단독주택, 5층 공동주택, 학교, 호텔, 리조트 등 다양한 목조건축 프로젝트의 설계 및 시공 관리를 총괄했다. 인하대학교 건축대학원 외 5개 학교에서 겸임교수로 목조주택 이론을 가르쳤으며, 국내 23개 대학교 건축관련 학과에서 목조주택 설계·시공 워크샵을 진행했다. 미국공인 홈인스펙터 자격을 갖고 있다. 현재 초이스건축을 운영하며 목조건축에 관한 설계 및 시공 컨설팅, 기술서적 출간, 전문인력양성 교육, 기술 통역 등 다양한 분야에서 활동하고 있다. 저서로는 '집짓기 전에 반드시 알아야 할 101', '한눈에 보는 목조주택' 등이 있다.
