세종특별자치시 고운동의 한적한 주택가에 현대적 감각과 전통적인 건축 미학이 조화를 이루는 단독주택. 목재의 따뜻한 질감과 현대적인 설계가 만나 완성된 이 집은 자연과 사람이 공존하는 공간으로 눈길을 끈다.
부부와 아들, 세 가족이 함께 거주하는 이 집은 단순한 주거 공간을 넘어 가족의 라이프스타일을 섬세히 반영했다. 가족 구성원의 프라이버시를 존중하면서도 함께하는 시간을 중시하는 설계 철학이 집 안 곳곳에 스며들어 있다.
이 주택은 목구조로 지어졌다. 목재는 특유의 따뜻함과 자연스러운 질감을 제공할 뿐 아니라 뛰어난 단열성과 통기성을 갖추고 있어 사계절 내내 쾌적한 실내 환경을 유지할 수 있다. 화이트와 우드 톤을 기본으로 한 인테리어는 간결함 속에서도 세련된 멋을 살려냈다. 심플하면서도 따뜻한 분위기는 가족의 일상에 안정감을 더한다.
집이 자리 잡은 고운동은 동북쪽으로는 울창한 숲이, 서남쪽으로는 주택가와 아파트 단지가 위치해 자연과 도심의 조화를 이룬다. 이러한 위치적 장점은 주택의 설계와도 밀접하게 연결돼 있다. 모든 창문은 빛과 바람이 자연스럽게 흐를 수 있도록 배치돼 있으며, 사계절의 변화를 고스란히 느낄 수 있는 채광과 통풍을 제공한다.
1층은 가족의 일상과 소통을 중심으로 설계됐다. 거실은 대형 창문을 통해 외부와 연결되며, 탁 트인 개방감을 선사한다. 거실 벽면에는 수납장과 책상을 배치해 독서와 휴식을 위한 공간을 마련했다. 계단은 벽 대신 난간으로 처리돼 시각적 개방감을 더하면서도 안정감을 잃지 않는다. 거실과 연결된 계단 아래에는 반려견을 위한 별도의 공간이 마련됐다.
1F 거실
차분한 그레이톤 타일을 둘라싼 큰 통창과 화이트톤 벽은 서로를 더 밝혀 공간의 확장감을 극대화시켰다. 계단 하부엔 건축주 부부가 키우는 반려견 두 마리를 위한 펫룸을 설치해 가족과 반려견이 함께 안락함을 즐길 수 있도록 매력적인 공간으로 계획했다.
주방은 효율성과 디자인을 겸비한 ‘11자’ 배치를 통해 공간을 최대한 활용했다. 창문 밖으로 보이는 자연을 감상하며 요리를 할 수 있는 설계는 일상 속 소소한 즐거움을 더한다. 블랙 포인트를 준 수전과 싱크볼은 세련된 감각을 드러내며, 돌출된 창대마감(WOOD)으로 만든 바 테이블은 가족이 함께 소통할 수 있는 또 하나의 다목적 공간이 된다. 또 냉장고와 보조주방으로 들어가는 벽면을 일 자가 되도록 설계함으로써 시각적으로 깔끔하게 떨어지도록 했다.
1F 주방
주방의 장컬러는 화이트로 깔끔한 느낌을 주고, 요리하는 것을 좋아하는 남편을 위해 부엌 공간 중앙에 아일랜드 식탁을 배치함으로서 충분한 작업 공간과 자연스럽게 대화를 나눌 수 있는 소통의 공간으로도 연출했다. 창가엔 미니바를 설치해 주변을 둘러싼 나무를 감상할 수 있는 홈카페로 계획했다. 큰 통창은 테라스와 뒷마당으로 이어져 일상과 자연을 연결시켜준다.
1층 복도에는 대청마루가 설치됐다. 이곳은 차를 마시거나 책을 읽기에 안성맞춤인 공간으로, 외부 툇마루와 자연스럽게 연결돼 있어 내부와 외부의 경계를 허물고 자연 속에서 휴식을 누릴 수 있도록 설계됐다. 화장실은 손님을 고려해 세면대, 양변기, 욕실을 분리한 점이 인상적이다.
현관&복도&툇마루
화이트 톤의 가구장과 투명한 유리의 중문으로 개방감을 주고 문과 가까운 곳에 벤치를 설치해 신발을 신고 벗을 때 편리하도록 계획했다. 현관을 지나면 폴딩도어가 설치된 복도를 맞이한다. 폴딩도어가 설치된 복도는 개방감을 한껏 더 높였고, 복도의 끝엔 툇마루를 설치해 편안히 쉴 수 있는 공간으로 디자인했다.
1F 침실
방문을 열자마자 보이는 원형의 거울은 곡선 형태로 편안하면서 친숙한 분위기로 연출시켜주고, 벽 한쪽엔 화이트의 원형 템바보드를 설치해 다소 밋밋할 수 있는 벽에 입체감을 살려 디자인했다. 침실을 나가면 옆쪽은 건식 세면대와 욕실로 이어져 편리함을 중점으로 두어 게획했다.
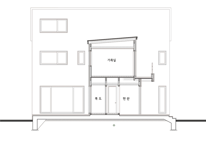
2층은 가족 구성원의 개인적인 시간과 취미를 위한 공간으로 꾸며졌다. 가족실에는 윈도우 시트를 설치해 다용도로 사용할 수 있도록 했으며, 작업실과 취미 공간은 유리 도어를 더해 소음 문제를 해결하면서도 프라이버시를 확보했다.
2F 가족실
2층의 중앙에 위치한 가족실은 우드가 특히 돋보이는 공간이다. 계단에서 올라와 가족실을 바라보았을 때 볼 수 있는 나무 살은 중목구조를 노출시킨 것으로 공간의 아늑함을 더해주고, 가족이 앉을 수 있게 설치된 붙박이 의자 하부엔 수납장을 배치해 공간의 활용도를 높였다.
2F 침실
내부에 중문을 설치해 방음이 가능한 아늑한 음악실로 디자인하여 소리에 집중할 수 있도록 했다. 방 이면엔 눈높이 창들을 뚫어 아늑함과 개방감을 동시에 만족시킬 수 있도록 계획했다.
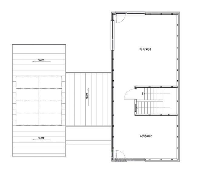
다락은 가족이 함께 영화를 감상하거나 조용히 쉴 수 있는 다목적 공간이다. 천장의 경사와 채광창이 아늑한 분위기를 더하며, 빔 프로젝터 설치를 위한 공간이 마련돼 특별한 시간을 보낼 수 있다.
다락방
다양한 높이의 창들로 다락의 높낮이 매력을 최대한 활용했다. 천장과 난간에 노출된 우드는 공간을 아늑하고 편안하게 만들어준다.
외부 정원은 이 집의 또 다른 매력 포인트다. 사계절의 변화를 가까이서 느낄 수 있는 이 공간은 자연 속에서의 여유를 제공한다. 정원 한쪽에 자리 잡은 테라스는 주방과 연결돼 있어 가족이 차를 마시거나 바비큐 파티를 즐기기에 안성맞춤이다.
목재의 따뜻함, 자연과의 연결, 현대적인 설계가 어우러져 만들어진 이 집은, 단순히 가족이 머무는 공간을 넘어 자연과 도시의 조화를 이루는 새로운 주거 방식을 제시한다. /나무신문
건축개요
대지위치▷세종시 고운동
용도지역/지구▷제1종전용주거지역,
지구단위계획구역(행정중심복합도시)
건축구조▷일반목구조
대지면적▷300.60㎡
건축면적▷117.69㎡
건폐율▷39.15㎡
연면적▷195.44㎡
용적률▷65.02㎡
1층(주택면적) : 95.87㎡
2층(주택면적) : 99.57㎡
다락 : 61.90㎡
설계▷태경건축사사무소 / 엠더블유건축사사무소
시공▷단감종합건설
사진작가▷이남선
자재개요
지붕▷징크 마감
외벽▷벽돌마감
내부천장▷친환경페인트
내벽▷친환경페인트
바닥▷원목마루, 자기질타일
지붕단열재▷크나우프인슐레이션 에코뱃 R-37
외단열▷크나우프 인슐레이션 에코뱃RSI6.5
중단열▷안티화이어보드
계단실 디딤판▷원목(북미산 레드오크)
난간▷철제난간
창호▷살라만더
현관▷일진게이트
주방기구▷리빙플러스
위생기구▷아메리칸스텐다드, 폰타나
난방기구▷브랜드: 경동나비엔
감은희 단감건축그룹 대표
엠더블유건축사사무소(단감종합건설)는 탁월한 건축 및 인테리어 디자인과 기술력으로 국내 목조건축 발전을 견인하고 있다. 특히 소규모 건축시장의 바른 방향과 지속가능한 건축을 연구하는데 힘쓰고 있다. 단순히 건축물을 만드는데 그치지 않고 고객과 함께 건강한 건축 환경을 만들어 사회에 기여하는 것이 우리 단감의 사명이다. 또 사람 중심 건축의 목표를 가지고 고객과의 신뢰를 무엇보다도 중요하게 생각하는 기업이다.
감은희 소장은 홍익대학교 건축도시전문대학원 도시설계 석사 이후 현재 홍익대학교 건축학과 박사과정 중이다. 주요 경력으로는 △JTBC '내 집이 나타났다' 중목구조전문가 출연 △SBS '좋은아침' 안전제일하우스 출연 △SBS '좋은아침' 랭킹쇼 출연 △여성건축가협회 정회원 △한국목조건축협회 정회원 △한국목조기술협회 정회원 △한국도시설계학회 정회원 △한국건축가협회 정회원 등이 있다. 주요 프로젝트로는 △프랑스 건축가 협업 타운하우스 - 용인 「Loire Valley」 △판교 주택 「同幸」 , 「미소드리움」 등 △양양 골든비치 리조트 「설해원 마운틴스테이」 △평창 상가주택 「SKI ZONE」 △서울 은평 협소주택 등이 있다.
