단절된 공간과 공유하는 기억의 복원
진주시는 도시의 주요 기능을 신도심으로 이전하며 꾸준히 확장해 왔으나, 2021년부터 방치된 구도심 문제의 해결을 위해 도심 재생사업에 집중하는 것으로 개발 방향을 선회했다.
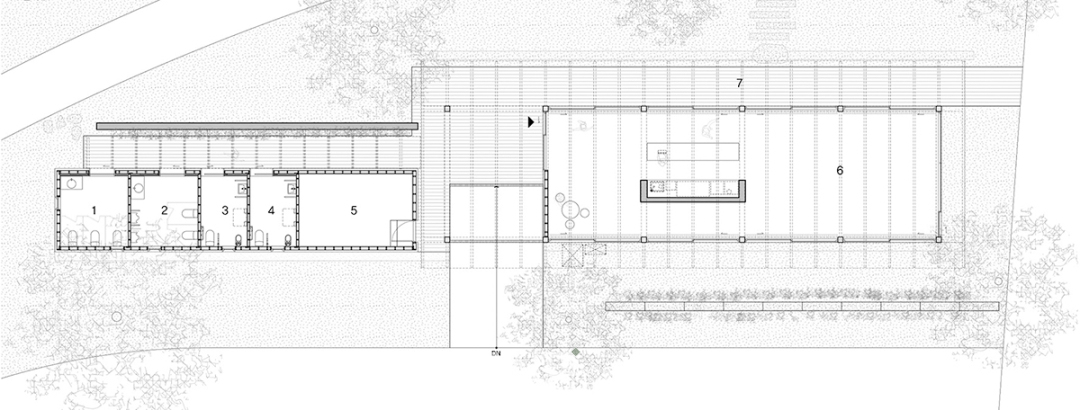
진주백년공원의 공간적 구상은 현황에서 시작되었다. 특히 오랜 시간 장성한 은행나무와 철로가 이루는 남북방향의 선형과 분산된 기능시설(차량정비고, 전차대, 진주역사)의 배치를 염두에 두고 도심 공원의 기본 골격을 갖추게 되었다. 또한, 향후 예정된 대규모 프로젝트(문화거리, 국립진주박물관)들과 공유하게 될 외부공간의 연속성과 경계부 전이공간의 확보도 함께 고려되었다. 건물은 철도역사의 전시와 가변적 문화행사, 그리고 휴식공간의 제공 등 중성적인 기능으로 국한되어 다목적 활용을 기대하며 진행했다.
진주백년공원은 남부권 도시재생의 마중물 사업으로 지난 백 년 동안 물리적으로 단절되었던 동서 방향의 도시조직을 잇고, 남북으로 뻗어나간 기존 철로를 따라 선형의 공원을 제공한다. 시민들이 오랜 시간 공유해 온 물질에 담긴 기억과 공간적 장소성을 유지하며, 새로운 시설과 활동을 수용하도록 완결된 형태가 아닌 열린 체계의 공원으로 씨줄과 날줄을 엮어 구도심의 변화를 수용하고 촉진할 수 있는 문화생산의
거점으로 계획했다.
차량정비고 리모델링
차량정비고는 국가등록 근대문화유산(제202호)으로 100살이 된 건물이다. 1925년 건립되어 6.25 전쟁을 거치고 2000년대까지도 사용되다 본래의 쓸모를 다하고 방치되어 있었다. 총탄의 상흔이 남아 있는 40미터 길이의 조적조 벽체가 12M 폭의 왕대공 트러스를 오롯이 버티고 있었고, 필요에 따라 무질서하게 부가된 공간을 새로운 쓸모에 맞게 정비하고 이젠 자취를 감춘 아치형 대문(4.2x4.9)을 복원하는 과제가 남겨져 있었다.
구)진주역사 리모델링
구)진주역사는 1953년 6.25 종전 이후 미 군정에 의해 신축되어 그 정확한 신축 시기는 알 수가 없다. 그러나 폐쇄적인 철도 부지와 도시를 잇는 게이트로서의 태생적 성격 덕분에 최근까지도 끊임없이 고쳐가며 이용되던 시설로 2020년에 마지막으로 사용된 식당의 흔적이 남아 있었다. 그간 철도의 역사를 전시하고 공원시설을 관리하며 방문자를 안내하는 공간으로 계획하며, 공원 입구의 상징성, 전시공간으로의 변화를 준비해야 했다.
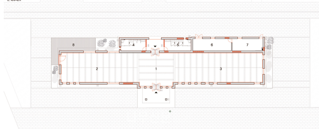
복합커뮤니티 시설 신축
복합커뮤니티는 향후 남강 변까지 연장될 ‘문화의 거리’를 지원하고 공원 방문자에게 간단한 식음료를 제공하는 휴게시설로 제안되었다. 오랜 시간 단절되어 있던 노후 주거지(서측)의 활성화를 기대하며 동서를 잇는 주요 동선상에 자리하게 되었다. 기존 시설과 동일하게 수평성을 강조하며 지형의 미세한 굴곡과 장성한 수목에 대비를 이룬다. 아직 미완인 국내 목구조의 현재 상황을 기술적으로 또 미학적으로 드러내고, 미래의 목구조를 기대하는 마음으로 계획했다.
<차량정비고 리모델링>
‘점’을 찍듯 세밀하게 보수하기
차량정비고의 리모델링은 ‘3D 스캐닝’을 통해 건물의 구석구석을 정밀하게 파악한 후에 문화재 심의위원과 협의를 통해 보수가 진행될 부분을 가려내는 지난한 과정이 요구되었다. 기존의 목조트러스는 시간이 지남에 따라 틈새와 휨이 발생했고 부분적으로 철물을 덧대며 보강했다. 노후화된 슬레이트 지붕을 징크 지붕으로 교체하며 단열을 추가하고, 부분적으로 남아 있던 PVC 창호는 목재 창을 제작해 교체했다.정면의 아치형 출입구는 접합이 최소화된 강화유리로 내외부를 구분 짓고, 외부에는 사진기록에 남겨진 그대로의 모습으로 목재 문을 추가 설치하였다.
기차의 정비를 위해 파인 철로 하부는 다양한 공간 활용에 큰 제약이 되었기에 강화유리 바닥을 추가하여, 속살이 드러날 수 있도록 했다. 또한, 철로를 따라 간접조명을 설치해 전시와 행사의 필요에 따라 활용하며 장방형 축이 만들어내는 공간감을 강화했다.
<구)진주역사 리모델링>
맞이하기 위해 비워낸 공간
2000년 초반까지도 식당으로 이용되던 구)진주역사는 구도심의 쇠락과 함께 상업적인 목적도 유지하지 못한 채, 도심 한복판에 방치되어 있었다. 그러나 지붕을 덮으며 내부 공간을 구획하는 왕대공 트러스는 본래의 골격을 잃지 않고, 굳건히 버티고 있었다.
구)진주역사 리모델링은 지난 세월 동안 무분별한 점유로 헝클어진 본래의 외관을 복원하는 데 집중하였다. 벽과 지붕의 단열 성능을 개선하였고, 상부 목구조의 노출을 통해 공간적 연속성을 유지하며 과거의 역사에서 현재의 역사박물관으로 이용되도록 계획하였다. 새롭게 단장한 구)진주역사는 과거와 현재를 잇고 공유하는 기억과 문화유산을 보존하는 아카이브가 된다.
<복합커뮤니티 시설 신축>
간결한 구조, 유연한 공간
복합커뮤니티 시설은 크게 두 공간으로 나뉜다. 우측의 카페는 구조적 간결성이 명확한 중목 프레임으로 공간을 형성한다. 통창으로 내·외부가 구분된 네 면은 시각적으로 탁 트인 전망을 제공하고 서측으로 길게 뻗은 지붕은 빛을 거르며 연속된 서까래 프레임을 통해 온전히 목구조를 경험하게 한다. 좌측의 서비스공간은 2″×6″ 스터드로 이루어진 경량벽과 SIP공법의 지붕으로 계획되었다. 전면의 콘크리트월과 묵직한 느낌을 주는 색상의 모노쿠쉬를 마감재로 사용하여 내밀한 공간임을 암시한다.
묵직하고 가벼운, 가볍지만 묵직한
4.5M 간격으로 늘어선 글루램 기둥은 보통의 중목구조보다 묵직한 비례이다. 중앙 콘크리트박스를 더해야만 횡력에 오롯이 대응한다. 이는 강접합으로 인정받지 못하는 기둥-보 결구와 구조적으로 인정받지 못하는 지붕의 베벨사이딩 등 우리나라 목구조의 계산방식을 있는 그대로 반영한 결과이다. 반면에 기능실(화장실, 기계실)은 경골목 벽체에 SIP 패널 지붕을 결합해 단순한 박스형 평지붕으로 구성했다. 자료제공=(사)한국목조건축협회 | 정리=김오윤 기자 /나무신문
건축개요
위치▷경상남도 진주시 강남동
대지면적▷24,719㎡
설계자▷소솔건축사사무소 왕성한
시공자▷(주)종합건설현범 김기홍(차량정비고), 인성산업개발(주) 박미양((구)진주역사),(주)만도건설 김태윤(복합커뮤니티 시설)
사진▷노경
자료제공▷(사)한국목조건축협회
<차량정비고 리모델링>
건축면적▷602.30㎡
연면적▷602.30㎡
규모▷지상 1층
구조▷조적구조, 목구조(목조트러스)
<구)진주역사 리모델링>
건축면적▷549.14㎡
연면적▷549.14㎡
규모▷지상 1층
구조▷조적구조, 경량목구조(기존 목구조 보수유지)
<복합커뮤니티 시설 신축>
건축면적▷218.98㎡
연면적▷218.98㎡
규모▷지상 1층
구조▷철근콘크리트조, 목구조(경골목, 중목)
