건축주와는 8년 전 오피스텔 설계로 처음 만났다. 그리고 이번이 두 번째 작업이다. 건축주가 살던 단독주택이 있던 곳에 수익성을 겸비한 근생주택을 짓는 프로젝트를 맡게 된 것이다.
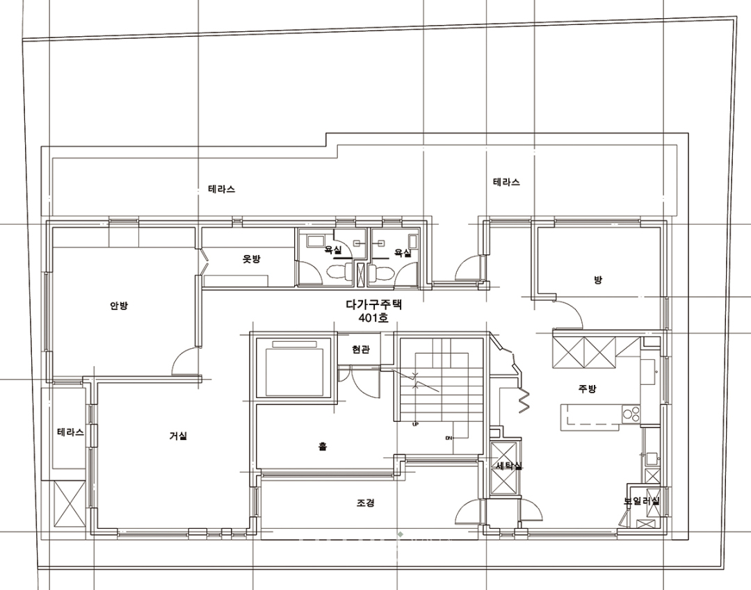
건축주 아버님이 지어주셨다는 이전의 단독주택은 어머님이 쓰시는 층과 건축주 가족이 머무는 층으로 분리된 복층 구조였다.
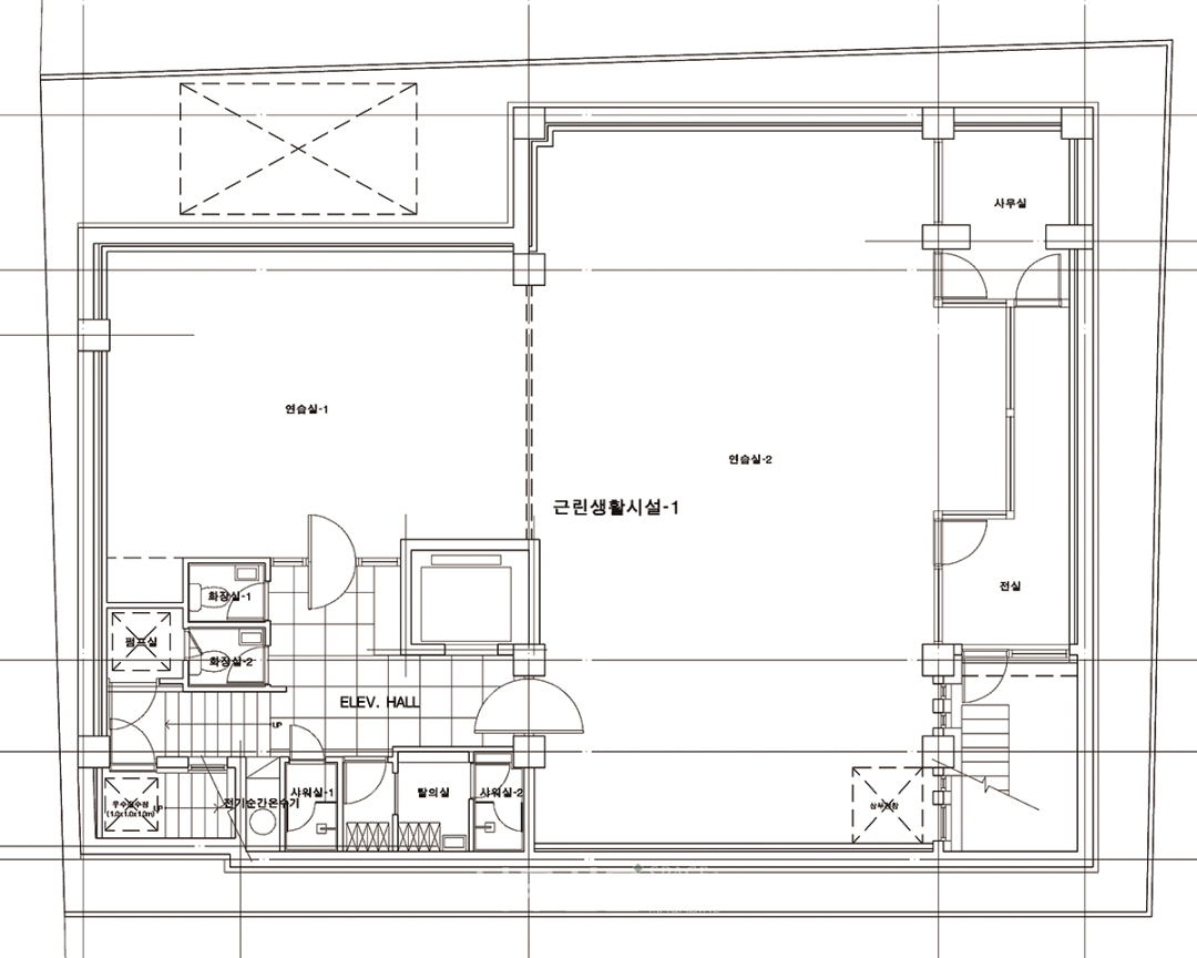
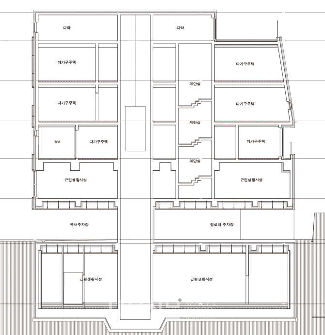
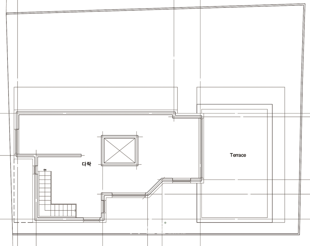
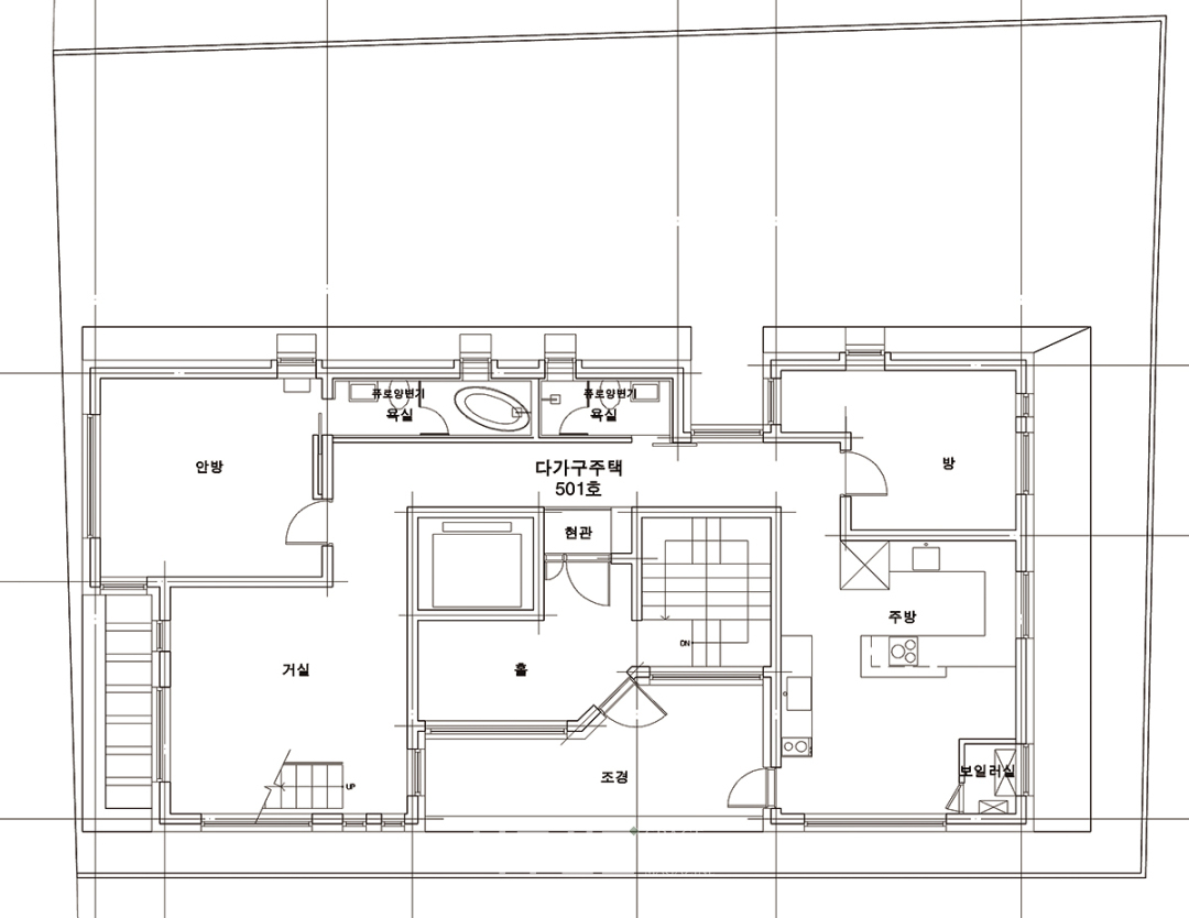
새로운 프로젝트에도 그 구성을 그대로 가져와서 맨 위 다락과 5층은 건축주 가족이 아래 4층은 어머님을 위한 층으로 구성했다. 나머지 층은 임대주택 및 근린생활시설로 구성했다. 특히 지하층은 높은 층고를 가진 곳인데, 무용을 전공하는 딸의 연습실을 만들어주려는 건축주의 간절한 염원이 담긴 공간이다. 지하 터파기를 하는 동안 3미터 높이의 암반을 모두 깨내는 수고로움과 노력을 고스란히 녹여내야만 했다.
주차장은 관리시스템을 도입해 임차인들을 위한 주차장과 건축주 가족이 사용할 주차장으로 분리해 계획했다.
지하로 내려가는 주계단의 남측에 면하는 창호와 부계단 옆 자그마한 공간에 둔 천창은 지하층 자연채광에 조금이나마 도움을 줄 수 있도록 계획했다.
2층의 근린생활시설과 3층의 임대주택에는 외부 테라스를 곳곳에 배치해 외기를 맞이할 수 있는 여유 공간을 제공해주고자 했다. 특히 3층의 임대세대는 1개씩의 외부 테라스를 가지는데, 애써 만든 공간이 실외기실로 전락하지 않도록 세대별 실외기실을 각각 계획해 냉난방설비를 완비해두었다.
남측과 동측으로 열리는 조망과 채광을 극대화할 수 있도록 그 쓰임새와 기능에 따라 다양한 여러 개의 창호를 계획했다.
기능적으로 여러 가지 내용을 담는 층별 평면을 외형으로 표현하기에는 단조로운 입면보다는 여러 가지 재료들의 물성이 맞물린 파사드가 필요하다고 느껴졌다. 화이트 톤의 메가판넬 띠는 이런 다양한 재료들을 묶어주기도 하고, 재료들을 경계 짓기도 하면서 커다란 흐름을 만들어내는 중요한 매개체로 설정됐다.
‘21개월’이라는 공사기간은 지하층 터파기의 어려움, 시공사와의 분쟁과 시공사 변경 그리고 건축주가 직접 공사를 진두지휘해야만 했던 상황들을 모두 담고 있다.
짧지 않은 기간 동안 무척이나 힘들었을 건축주에게, 이제는 새로 지어진 주택을 누릴 여유를 조금씩 찾아나가기를 기대해 본다. 그 여유가 그간의 어려움을 희미하게 해주고, 새로운 추억들로 선명하게 채워줄 것이다. 아버지가 지어준 오래된 주택을 그의 아들인 건축주가 다시 지어서 딸의 터전을 만들어주는 아름다운 대물림의 의미가 ‘the Willow 1214’라는 이름 속에 깊게 남기 바란다. 글=오문서 소장 | 정리=서범석 기자 / 나무신문
건축개요
대지위치▷서울시 성북구 정릉동
대지면적▷357.00㎡
건축면적▷214.02㎡
연 면 적▷843.34㎡
건 폐 율▷59.95%
용 적 률▷171.56%
용도▷근린생활시설, 다가구주택
규모▷지하1층 / 지상5층
구조▷철근콘크리트조
주차대수▷8대
시공▷솔하임건설
설 계 ▷건축사사무소 오파드건축연구소(OpAD)_이경훈, 서승현
사 진▷오파드건축연구소, 어나더그로우
자재개요
외부 마감재▷인디안블랙, 라임스톤, 콘크리트벽돌타일(다다벽돌), 메가판넬
창호▷알루미늄시스템 창호(이건), 알루미늄단열바 창호
내부마감재▷도장 – 친환경페인트(제비표)
도배 – 실크벽지(LG벽지)
타일 – 자기질타일
바닥 – 원목마루, 강마루
위생기구▷아메리칸 스탠다드 외
가구▷제작가구
계단재, 난간▷애쉬집성목/투명락카, 유리난간
목문▷제작도어 및 영림도어
주차장 자동셔터▷동진에이디(주)
sketchup
건축가 소개
건축사사무소 오파드건축연구소(OpAD) 오문석(Moonseok Oh) 대표, 건축사
한양대학교 공과대학 건축학과를 졸업하고, 삼정건축, 원일건축, 양진석건축연구소 등에서 실무를 쌓았으며, 2008년부터 현재까지 오파드건축연구소(OpAD)를 운영해오고 있다. 2014년 ‘경향신문사 상반기 신지식 혁신인’에 선정됐으며, 2020년 ‘남양주시 우수건축상’ 최우수상을 수상했다.
주요작품으로는 명동 메트로호텔 리노베이션(2004년,2014년), ㈜did벽지 진천공장(1,2차), 과천 협소주택, 광주 원당리 보리네집, 길음동 해솔이네, 도림동 다가구주택 1+2, 상도동 쉐어하우스 우주인, 신수동 다가구주택 소유재, 정릉동 협소근생주택 이루가, 동소문동 오피스텔 더에이트, 양평 공흥리 듀크, 마천동 두세모, 남양주 산수재, 양평동 삼미재, 등촌동 레씨엘르, 미아동 STONE BRICK, 수원 아셀가든, 남양주 Moon’s 2020, 혜화동 소원재, 평택 Wooden Breeze, 역삼동 J321, 오파드가, 가락동 담빛채 등이 있다.
