“소장님은 어떤 곳에 사세요?”
건축주들이 가끔 물어오는 말이다. 기대에 가득한 그 물음에 내가 내뱉는 대답은 항상 “아파트에 살아요”였다. 무언가 실망한 그들의 표정은 굳이 말로 하지 않아도 읽혀진다.
건축주의 일상을 함께할 주거공간을 무수히 만들어 왔지만, 정작 나와 가족을 위한 주거를 여태껏 만들어내지는 못했다.
여러 핑계를 뒤로하고 우리 가족을 위한 보금자리 터를 찾아 나섰다. 도심이지만 전원 같은 곳, 많은 사람들이 모여 살지만 떠들썩하지 않은 곳, 아직도 예전 주택가의 정취가 묻어나는 곳….
그렇게 선택된 곳이 쌍문동이었다. 주택으로서는 더할 나위 없는 곳이라 여겨졌던 그곳에, 사무실도 함께 계획하기로 했다. 많은 이들의 로망이라 할 수 있을 ‘직주일체’를 꿈꾸며….
쉬울 줄로만 알았던 과정은 생각보다 녹록지 않았다. 첫 번째 이유는 ‘아내’라는 건축주가 만족할 주택을 설계하는 것이었으며, 둘째는 치솟는 공사비였다.
누구에게나 그렇듯 집을 완성한 마당에 그러한 얘깃거리는 이미 지난 일이요, 희미한 기억이 되어간다.
이젠 수직 동선으로만 이어지는 초단거리 출퇴근길을 누리기만 하면 된다. 입주한지 그리 오래되지 않았지만, 북적거리는 공동의 주택인 ‘아파트’에서의 삶이 아련한 기억으로 느껴진다. 직장과 하나된 주택에서의 삶을 누릴 인생이막이 몹시 기대된다. 글=오문서 소장/정리=서범석 기자 /나무신문
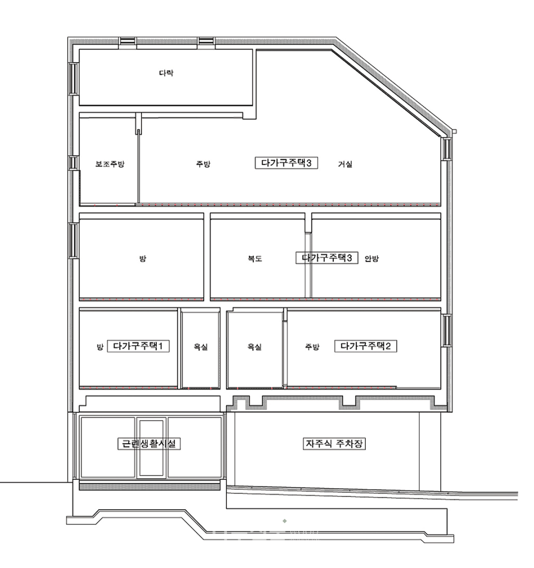
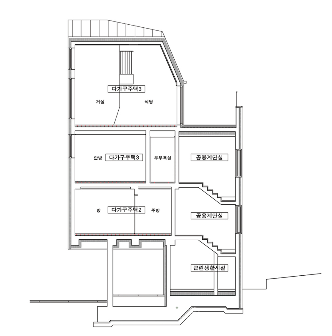
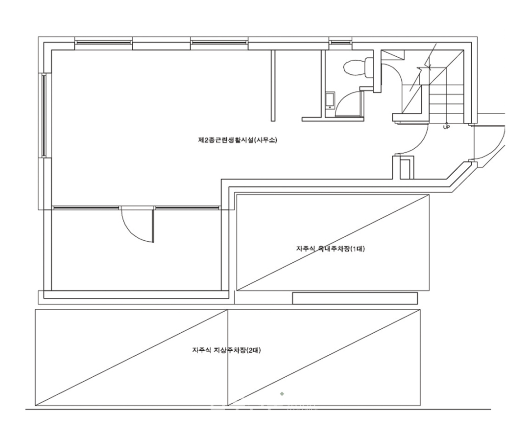
1층 101호
2층 201호
2층 202호
3층 301호
건축개요
대지위치▷서울 도봉구 쌍문동
대지면적▷139.00㎡
지역지구▷도시지역, 제1종일반주거지역
건축면적▷ 83.21㎡
연면적▷207.61㎡
건폐율▷59.86%
용적률▷149.36%
용도▷다가구주택 및 근린생활시설
규모▷지상 4층
구조▷철근콘크리트조
시공▷세움종건
설계▷오파드건축연구소(이경훈, 서승현)
사진▷오파드건축연구소
자재개요
외벽타일▷모노클래식 콘크리트벽돌타일(다다벽돌)
창호▷이건시스템창호(한국창호)
가구▷리바트, 한샘, 아론가구
타일▷기홍건재, 2L무역
마루▷동화나투스강마루
목문도어▷영림도어
위생기구▷아메리칸 스탠다드, 이누스
모형
sketchup
건축가 소개
건축사사무소 오파드건축연구소(OpAD)
오문석(Moonseok Oh) 대표, 건축사
한양대학교 공과대학 건축학과를 졸업하고, 삼정건축, 원일건축, 양진석건축연구소 등에서 실무를 쌓았으며, 2008년부터 현재까지 오파드건축연구소(OpAD)를 운영해오고 있다. 2014년 ‘경향신문사 상반기 신지식 혁신인’에 선정됐으며, 2020년 ‘남양주시 우수건축상’ 최우수상을 수상했다.
주요작품으로는 명동 메트로호텔 리노베이션(2004년,2014년), ㈜did벽지 진천공장(1,2차), 과천 협소주택, 광주 원당리 보리네집, 길음동 해솔이네, 도림동 다가구주택 1+2, 상도동 쉐어하우스 우주인, 신수동 다가구주택 소유재, 정릉동 협소근생주택 이루가, 동소문동 오피스텔 더에이트, 양평 공흥리 듀크, 마천동 두세모, 남양주 산수재, 양평동 삼미재, 등촌동 레씨엘르, 미아동 STONE BRICK, 수원 아셀가든, 남양주 Moon’s 2020, 혜화동 소원재, 평택 Wooden Breeze, 역삼동 J321, 오파드가, 가락동 담빛채 등이 있다.
