봉천동, 주택 밀집도가 높은 골목 귀퉁이의 오래되고 낡은 다가구주택이 있었다. 오래 전에 지어진 이 다가구주택은 이곳저곳에서 생겨나기 시작한 하자 거리로 몸살을 앓고 있었다.
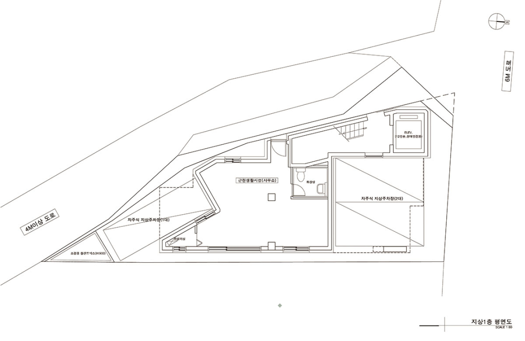
더욱이 유일하게 남쪽을 향하는 삼각형 대지의 꼭지점에는 공용계단이 자리하고 있었다. 자연스레 남측 채광의 혜택을 포기할 수밖에 없는 불합리한 구조다.
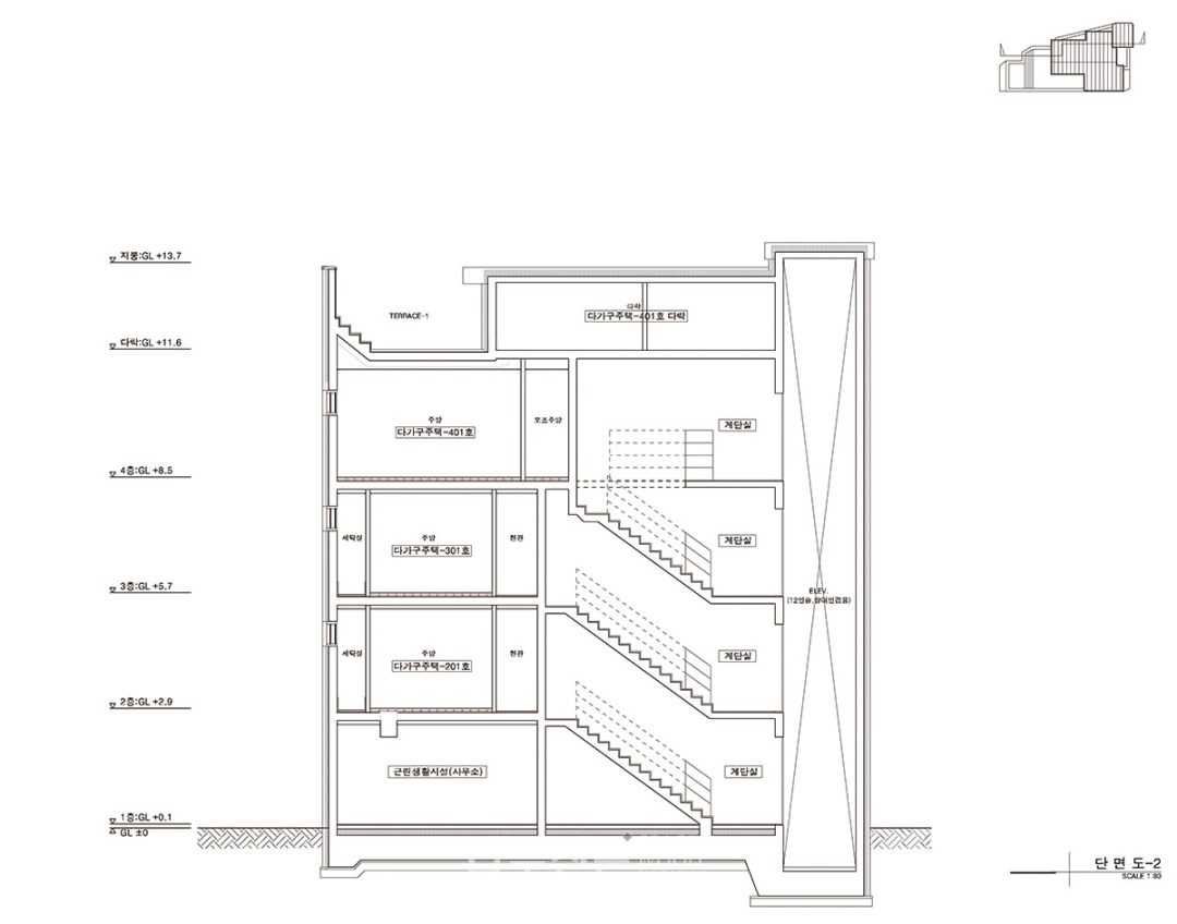
건축주는 오랜 고민 끝에 다시 신축을 결심했다. 누수와 곰팡이 등으로 최악의 주거환경일 수밖에 없었던 지하층은 없애고, 1층에는 필로티 주차장과 자그마한 근린생활시설도 두기로 했다. 또 2층과 3층은 수익성을 고려한 임대주택을 4층과 다락에는 주인세대가 거주하도록 구성했다.
아울러 삼각형의 긴 변과 나란하게 일자형 계단을 두어 임대세대로의 원활한 진입동선을 만들어 주고, 서측에 위치하는 좁은 도로로부터의 소음차단 및 프라이버시 보호를 가능토록 했다.
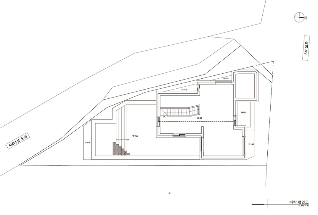
정북방향 일조권 사선제한으로부터 자유로운 주인세대 남측의 거실은 천장고를 높여서 개방감 및 채광량을 극대화했다.
주인세대의 상부층에 해당하는 다락에는 자녀만의 공간으로 꾸미고, 동일한 층에서의 옥상테라스를 바로 누릴 수 있도록 했다. 특히 아래층 거실의 높아진 천장고로 인해 생겨난 2단의 옥상 바닥은 더 좋은 전망을 선사해 준다. 글=오문서 소장/정리=서범석 기자 / 나무신문
건축개요
위치▷서울시 관악구 봉천동
대지면적▷136.83m2
건축면적▷79.74m2
연면적▷249.98m2
건폐율▷58.28%
용적률▷182.69%
용도▷다가구주택 및 근린생활시설
규모▷지상 4
구조▷철근콘크리트조
주차대수▷3
시공▷㈜공감건설
설계▷건축사사무소 오파드건축연구소(OpAD, 소장 오문석)
설계팀▷이경훈, 서승현
사진작가▷임상협
자재개요
외부 마감재▷콘크리트벽돌타일, 칼라강판
창호▷이건알루미늄시스템창호
내부마감재▷공용부_광택스도료
세대내부_실크벽지
바닥_강마루
위생기구▷아메리칸 스탠다드, 이누스
가구▷제작가구
조명▷공간조명
계단재, 난간▷애쉬집성목, 스틸(평철)난간
목문▷영림도어
sketchup
건축가 소개
건축사사무소 오파드건축연구소(OpAD)
오문석( Moonseok Oh) 대표, 건축사
한양대학교 공과대학 건축학과를 졸업하고, 삼정건축, 원일건축, 양진석건축연구소 등에서 실무를 쌓았으며, 2008년부터 현재까지 오파드건축연구소(OpAD)를 운영해오고 있다. 2014년 ‘경향신문사 상반기 신지식 혁신인’에 선정됐으며, 2020년 ‘남양주시 우수건축상’ 최우수상을 수상했다.
주요작품으로는 명동 메트로호텔 리노베이션(2004년,2014년), ㈜did벽지 진천공장(1,2차), 과천 협소주택, 광주 원당리 보리네집, 길음동 해솔이네, 도림동 다가구주택 1+2, 상도동 쉐어하우스 우주인, 신수동 다가구주택 소유재, 정릉동 협소근생주택 이루가, 동소문동 오피스텔 더에이트, 양평 공흥리 듀크, 마천동 두세모, 남양주 산수재, 양평동 삼미재, 등촌동 레씨엘르, 미아동 STONE BRICK, 수원 아셀가든, 남양주 Moon’s 2020, 혜화동 소원재, 평택 Wooden Breeze, 역삼동 J321, 오파드가, 가락동 담빛채 등이 있다.
