2023 대한민국목조건축대전 계획부문 입선 | 장범용, 최지호(청주대학교 건축학과)
‘2024 제22회 대한민국목조건축대전 공모전’ 주제는 ‘기계 나무 시대의 짓기와 잇기’. 준공부문과 계획부문으로 각각 진행되는 공모전은 산림청이 주최하고 한국목조건축협회가 주관하며 국토교통부와 서울시가 후원하고 있다. 지난해 수상작들을 연재한다. <편집자 주>
21세기 목조건축의 발전
목조건축은 가볍지만 무게에 비하면 강도가 단단하고 충격 흡수력이 높아 견고하다는 특징을 가진다. 또 실내가 쾌적하고 에너지 효율이 뛰어나 자연 친화적이며 공사기간이 짧다는 장점도 있다. 이렇게 점차 발전해 나가고 있는 목조건축은 앞으로 어떤 방향으로 나아가야 할까? 일상에 지쳐 휴식이 필요하거나 일정하게 거주지를 옮기는 사람들, 갑작스러운 팬데믹 상황으로 격리시설의 수요가 늘어나는 등 사람들에게는 자신들의 필요에 맞는 다양한 공간의 필요성이 점점 증가하고 있다. 우리는 목재가 가지고 있는 가변적이고 안정적인 특성을 이용해 이런 다양한 사람들에게 필요한 다양한 공간을 제공하는 경량 목조건축물을 제시한다.
유기적인 건축
자연에서부터 시작하는 목조건축은 건축재료 중 유일한 유기체다. 또한 다른 구조와 다르게 다양한 결구방식을 이용해 결합되는 목구조는 건축물의 조립과 해체가 빠르고 간편하다. 우리는 격자형 목재 틀을 기울여 슬라브와 결합해 구조적인 안정성을 확보함과 동시에 큰 비용을 들여 해체하는 다른 건축물들과 다르게 시간이 지나면서 자연스럽게 자연으로 돌아가는 유기적인 친환경 건축물을 구상했다.
MASS PROCESS
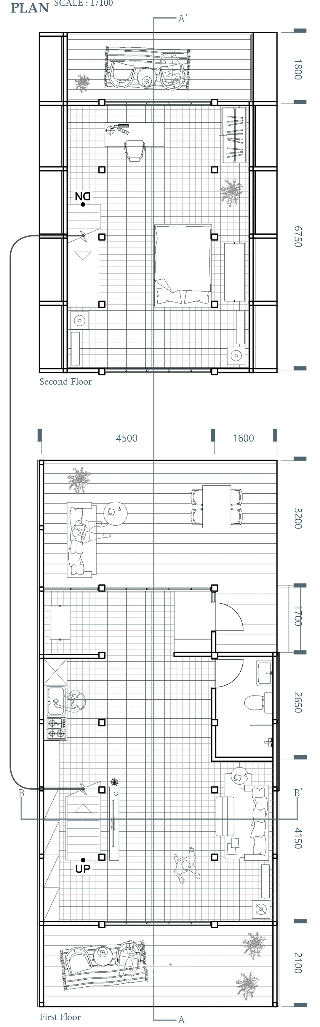
PLAN
STRUCTURE
AXONOMETRIC
어느 곳에서나 건축물이 필요한사람들에게 적은 비용으로 간단하고 안정적인 공간을 제공하고 공간의 필요가 없어졌을 때 철거하지 않아도 자연으로 돌아가는 형태의 건축물은 앞으로 다양한 상황에서 이용할 수 있고, 목구조의 장점을 최대한 이용한 가변적이고 유기적인 건축물이 될 수 있다고 생각한다. 자료제공=한국목조건축협회 | 정리=김오윤 기자 /나무신문
ISOMETRIC
b 세로 장선
c 가로 장선
d 바닥 마감재
e 기둥
f 외벽체
g 벽체 덮개
h 기초
ELEVATION
