사이트는 단 한 번도 개발된 적이 없는 지목이 ‘답’인 나대지였다. 오랜 기간 재활용센터로만 임대를 줘왔던 건축주는, 그곳에 단독주택을 짓기로 결심했다.
오롯이 두 건축주 부부와 아들 등 세 가족만을 위한 공간이 필요한데, 땅 모양이 긴 삼각형이라 했다. 긴 삼각형의 대지가 활용도는 다소 낮아질 수 있지만, 단독주택 구성에는 전혀 손색이 없다는 설명에 안도했다.
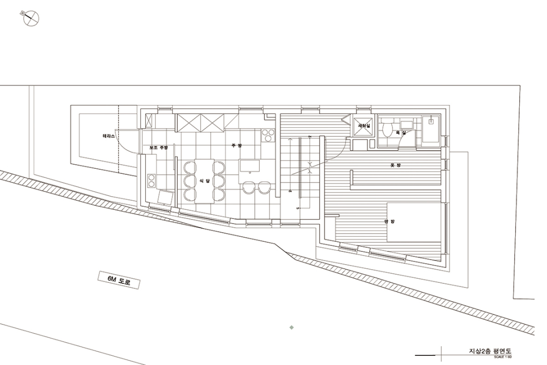
긴 삼각형의 대지는 길이 방향으로 완만한 경사를 이루고 있어서, 그 레벨에 맞게 skip-floor 형식으로 계획했다. 대지에 순응하는 계획은 사용하기에 편리할 뿐만 아니라 경제적이기도 하기 때문이다.
중심부의 계단을 경계로 반 개 층씩 올라가면서 맞는 방들과 주방, 거실 등은 각각의 독립적인 레벨 및 영역을 가진다. 주된 동선인 계단은 오르내리는 데의 불편함을 최소화할 수 있도록 단수를 늘려서 단 높이가 높지 않게 했다.
쾌적한 건폐율과 인접대지와의 이격거리 그리고 맞은편 아차산 자락의 숲 조망은 이곳이 서울 도심의 단독주택임을 잠시 잊게 만든다.
마당과 각층에서 만나는 테라스 공간 그리고 옥상은 계절의 변화를 쉬 알 수 있게 해줄 것이다. 주변 주택들과 이질감을 최소화할 수 있는 콘크리트 벽돌 타일을 매스의 볼륨에 맞게 색상별로 배치해 긴 형태의 파사드를 지루하지 않게끔 했다. 아차산을 찾아온 행인들에게도 기분 좋은 시각적 휴식을 제공해 줄 수 있으리라 믿는다.
‘tri-an(트라이언)’이라는 이름처럼 긴 삼각형의 대지에 세 분의 건축주 가족을 위한 행복 충만한 공간이 되기를 바라는 마음이다.
글=오문석 소장 / 정리=서범석 기자
PLAN
건축개요
프로젝트명▷광장동 단독주택 ‘tri-an’
대지위치▷서울시 광진구 광장동
자역/지구▷제1종일반주거지역, 자연경관지구
대지면적▷174.81㎡
건축면적▷65.71㎡
연면적▷141.95㎡
건폐율▷37.59%
용적률▷81.20%
용도▷단독주택
규모▷지상 3층
구조▷철근콘크리트조
주차대수▷2대
설계▷건축사사무소 오파드건축연구소
설계팀▷이경훈, 서승현
시공▷리코ENC 건축디자인
사진▷오파드건축연구소
자재개요
외부 마감재▷0.5T 칼라강판
콘크리트벽돌타일(다다벽돌)
내부마감재▷도장_친환경페인트(제비표)
도배_실크벽지(did벽지 나인)
타일_자기질타일(기홍건재)
바닥_강마루(동화강마루)
단열재▷PF폼 단열재
창호▷알루미늄시스템창호(이건)
위생기구▷아메리칸 스탠다드
가구▷리바트
조명▷공간조명, 조명나라
계단재, 난간▷애쉬집성목/본덱스 오일스테인, 스틸난간
목문▷예림도어
sketchup
모형
건축가 소개
건축사사무소 오파드건축연구소(OpAD)
오문석( Moonseok Oh) 대표, 건축사
한양대학교 공과대학 건축학과를 졸업하고, 삼정건축, 원일건축, 양진석건축연구소 등에서 실무를 쌓았으며, 2008년부터 현재까지 오파드건축연구소(OpAD)를 운영해오고 있다. 2014년 ‘경향신문사 상반기 신지식 혁신인’에 선정됐으며, 2020년 ‘남양주시 우수건축상’ 최우수상을 수상했다.
주요작품으로는 명동 메트로호텔 리노베이션(2004년,2014년), ㈜did벽지 진천공장(1,2차), 과천 협소주택, 광주 원당리 보리네집, 길음동 해솔이네, 도림동 다가구주택 1+2, 상도동 쉐어하우스 우주인, 신수동 다가구주택 소유재, 정릉동 협소근생주택 이루가, 동소문동 오피스텔 더에이트, 양평 공흥리 듀크, 마천동 두세모, 남양주 산수재, 양평동 삼미재, 등촌동 레씨엘르, 미아동 STONE BRICK, 수원 아셀가든, 남양주 Moon’s 2020, 혜화동 소원재, 평택 Wooden Breeze, 역삼동 J321, 오파드가, 가락동 담빛채 등이 있다.
