‘2024 제22회 대한민국목조건축대전 공모전’ 참가 접수가 오는 8월13일까지 진행되고 있다. 올해 주제는 ‘기계 나무 시대의 짓기와 잇기’. 준공부문과 계획부문으로 각각 진행되는 공모전은 산림청이 주최하고 한국목조건축협회가 주관하며 국토교통부와 서울시가 후원하고 있다. 지난해 수상작들을 연재한다. <편집자 주>
위치▷경기도 양평군 지평면
대지면적▷698㎡
연면적▷137.91㎡
건축면적▷137.91㎡
규모▷지상 1층
주구조▷경량목구조
설계자▷투닷건축사사무소(주) 조병규, 소정호
시공자▷(주)케이에스피앤씨 장길완
사진▷최진보
SITE
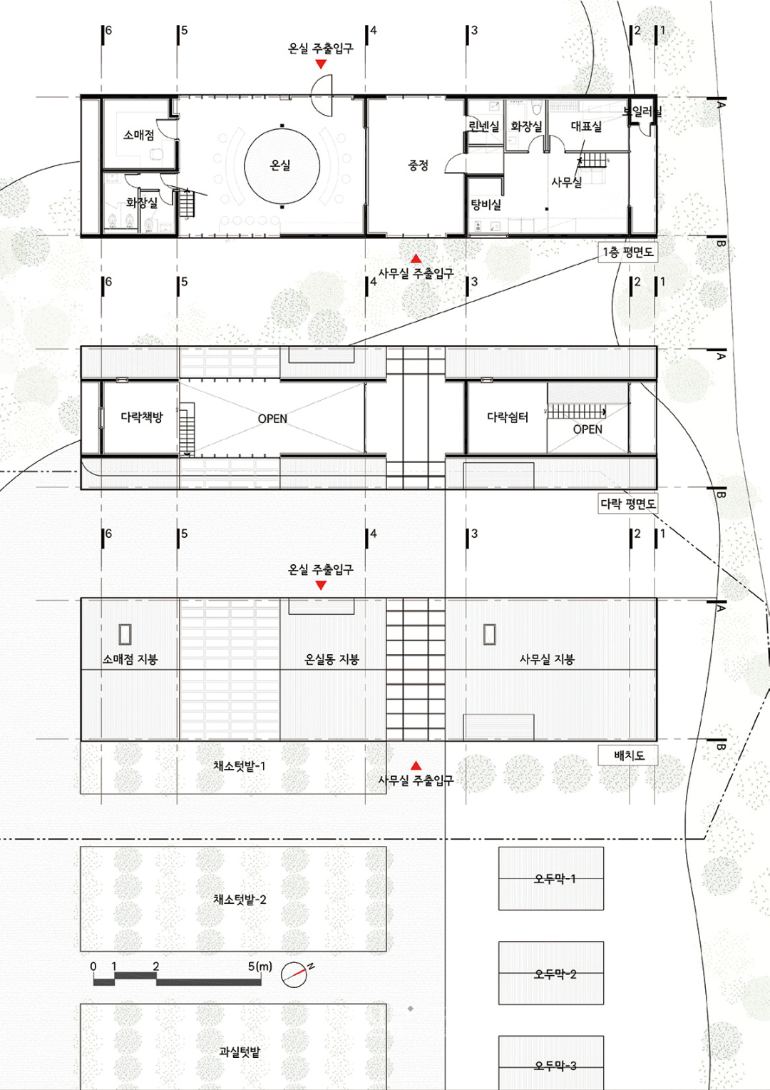
경기도 양평군 지평면 망미리에 위치한 대지는 삼각산과 배미산 그리고 매봉산이 만나는 골짜기에 위치한다.
깊은 산중에 위치한 대지는 인적이 드물어 고요하고 평화로운 모습을 잘 간직하고 있다. 은퇴 이후 이곳에서 과실나무를 재배하며 여생을 보내고 있는 건축주 부부는 근린생활시설과 온실, 캠핑장을 의뢰했다. 계획에 앞서 먼저 들었던 생각은 ‘이곳에 자리 잡을 건축물은 어떤 모습이어야 하는가?’이다.
이 땅에 자리 잡을 건축물의 모습은 자작나무를 닮았으면 좋겠다. 푸르른 녹음 사이에서 은회색의 존재감을 갖되, 아주 큰 덩어리보다는 작은 단위의 군락을 이루어 주변의 녹음과 조화를 이루었으면 좋겠다. 군락을 이룬 건축물이 주변의 녹음과 자연스럽게 어우러지고 긴 시간을 공유했으면 하는 바람이다.
나무를 닮은 형태_벽과 지붕이 합쳐진 이등변삼각형
나무를 닮은 완결적인 형태의 이등변삼각형은 놓이는 각도에 따라서 벽과 지붕이 결합될 수 있는 가능성을 보여주었다. 흔히 경량목구조의 구조재로 사용되는 SPF 구조목의 사이즈는 대략 6.1m이다. 60도로 기울어진 각도에 6.1m의 구조목을 설치하면, 목재의 손실 없이 대략 1.5~2개 층의 층고를 확보할 수 있다.
벽과 지붕의 경계가 모호한 예각의 이등변삼각형 형태는 목구조 공사의 공정을 최소화한다. 규격화된 스터드를 지상에서 조립한 후 간격에 맞추어 배열하면 되는, 단순한 메커니즘으로 효율적인 시공이 가능하다. 또한 가파른 형태의 경사지붕은 기능적으로 방수에 최적화되어 있다.
얼기설기 배치된 나무와 숲
건축물의 배치는 경사지로 이루어진 대지에 각각의 매스를 어떻게 앉힐까에 대한 고민에서부터 시작한다. 대지의 진입은 경사를 따라서 가장 낮은 곳에서부터 서서히 올라가는 방식인데 진입하면서 인지되는 건축물의 시퀀스가 다르기를 의도하였다.
대지 전면부에 드러난 매스는 초입에서 위를 올려다보았을 때 자연에 순응하여 조화롭지만 강한 인상을 주기를 바랐다. 주변의 녹음과 조화된 매스는 자작나무의 수피처럼 은회색의 존재감을 드러낸다.
따뜻한 질감의 나무 마감재
이 프로젝트에 마감 및 구조재로 사용된 나무는 자작나무, 가문비나무, 소나무, 삼나무, 참나무 총 5개의 수종이다.
구조목으로 사용된 전나무, 가문비나무 수종은 강도가 높아 단단하면서 가벼워 작업이 쉽다. 비교적 명도가 높은 황갈색을 띠며, 무늬가 수려하다.
경량목구조의 규격화된 스터드는 대략 400㎜의 간격을 두고 설치된다.
촘촘하게 설치된 구조목 스터드는 이 부재가 단순히 구조재에 그치는 것이 아닌, 루버나 간살의 형태가 될 수 있음을 보여준다.
내벽에 사용된 미송합판은 밝은 미색이다. 옹이가 있는 유절을 사용해 구조목과의 질감과 색감을 조화롭게 계획했다.
외벽에 사용된 메인 재료는 자작나무의 수피를 닮기를 의도했다. 수형이 곧은 자작나무 군락을 패턴화해 강한 수직성을 갖는 은회색의 스틸 재료를 사용했다.
벽에 사용된 또 다른 재료인 삼나무는 붉은색이 섞인 황갈색을 띤다. 습기에 강하고 함수율이 낮아 외부에도 사용할 수 있다. 목재의 내구성을 위해 규화제를 도포해, 추후에는 은회색의 색감을 띠게 될 것이다.
마지막으로 바닥재 및 계단재에 사용한 참나무는 결이 섬세하고, 선명하다.
가구로도 많이 사용되는 인기 있는 수종이며, 시간이 지날수록 채도가 낮아지며 톤이 차분해질 것이다.
마감 및 구조재로 사용된 나무와 더불어 커튼월을 통해 유입되는 풍부한 자연광은 공간이 주는 깊이감을 극대화한다.
그런 의미에서 망미농장은 흔히 도시에서 느끼는 차갑고 빽빽함에서 벗어나 온전히 나무의 따뜻함과 여유를 느끼며 자연과 소통하는 공간이 될 것으로 기대한다. 자료제공=한국목조건축협회 | 정리=김오윤 기자 /나무신문
