초등학교가 근거리에 위치하고 남측으로 인접대지가 있다. 동측과 북측으로는 도로가 있으며 서측에 보행로가 있는, 3면이 도로에 접한 필지다. 북측도로 건너편에도 필지가 있고, 동측 도로 건너는 남북으로 길게 이어진 도심공원이 있다.
공원에는 상록수와 잔디, 파고라와 정자가 있다. 작은 실개천도 흐른다. 동남측으로는 공원을 따라 원경으로 낮은 구릉이 보여서 원경 조망도 가능하다. 부지는 모퉁이에 위치해 인접대지가 적지만 도로들에 의해 부지 모양은 사각형이 아니다. 직각으로 된 부분이 하나도 없는 쉽지 않은 필지다.
이처럼 대지가 가진 여러 각을 수용하면서 최대한 큰 마당을 가진 집을 디자인했다. 동시에 내부 공간에서의 형태에 의한 각의 변화로 인한 피해를 줄이고자 했다.
마당을 감싸고 공원으로 열린 형태
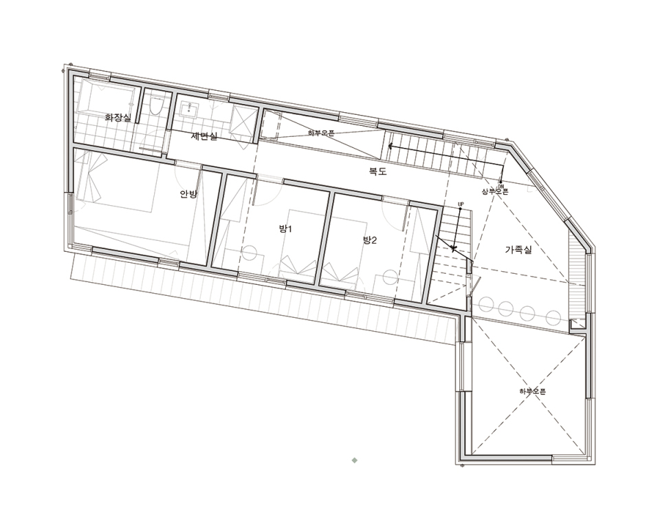
남서쪽으로 마당을 두고 ㄱ자 형태로 마당을 감싸는 배치계획을 하여 도로 쪽에서의 프라이버시를 확보하고자 했다. 동측에 마당을 두고 공원과 연계해 열 수도 있었으나, 차가 다니는 도로와 마당이 연결되기보다, 보행로와 관계된 마당이 더 안전하고 동선도 자유롭기에 선택한 배치다.
대지의 형태에 따라 1m 건축한계를 띄운 건물은 2층으로 쌓아서 채우고, 동선은 북측에서 진입해 현관으로 들어서고 차량 진입도 북측에서 들어와 마당으로 열려 있다. 차고 문을 열면 마당과 북측 도로가 열리면서 바람이 넘나드는 좋은 그늘 놀이터가 된다. 마당을 감싸는 위요감의 배치 구성의 장점과 열린 공간의 장점을 모두 가지고자 ‘ㄱ’자 형태로 계획했다.
외적 단단함과 내적 밝음을 가진 집
경골목구조 주택이지만 단단한 외관을 위해 벽돌로 외장 마감재를 선택했다. 벽돌의 특성상 큰 창보다는 공간별 맞춤 창호를 계획했고, 남측의 마당에 면해 메인 브라운색의 벽돌이 아닌 짙은 회색의 포인트 벽돌을 사용해 형태가 더 드러나게 했다.
북측에 계단실과 복도가 있어서 밝은 공간을 위해 큰 창을 두고 천창을 포함한 창을 많이 설치했다. 남동측 2층의 코너창과 남서측 2층의 코너창은 여러 각을 가진 형태의 양 끝단을 열어 확장의 의미로 사용됐다. 지붕은 단순한 박공지붕으로 디자인하지 않고 다양한 대지의 각을 수용한 매스에 어울리게 편경사 지붕과 박공지붕을 혼합해 완결된 형태를 추구했다.
식당과 평상을 중심으로 짜임새를 높인 공간
마당이 중요한 외부공간이라면 내부 공간에서는 식당과 평상 공간이 집의 핵심이다. 현관을 지나 집안에 들어서면 식당과 주방이 맞이해주며, 복도를 통해 거실과 연결되거나 계단을 통해 2층으로 연결된다.
주방에서 바로 대면하는 식당 구성과 마당으로 열린 창은 자녀들과 늘 함께하는 엄마의 마음이 반영됐다. 거실과 분리돼 있으면서도 동선이 모이는 공간으로 집의 중심이 된다. 밝은 복도를 지나 거실로 들어서면 2층으로 열려있어 더 밝은 공간을 느끼게 된다. 2층 가족실과 소통이 가능하면서 다층공간의 공간감을 느낄 수 있는 즐거움의 장소다.
식당은 아이들이 늘 책과 함께 하고 편히 쉬고 먹고 놀 수 있는 공간이다. 식탁은 입식뿐만 아니라, 좌식과 와식이 가능한 평상과 연결되어 다양하게 활용될 수 있다.
목조주택이지만 외관이 벽돌이라 나무 느낌은 살릴 수 없었지만 내부에는 나무질감을 많이 사용해 목조의 따뜻함을 줄 수 있도록 했다.
2층으로 올라서면 큰 창으로 공원이 보이는 가족실이 펼쳐진다. 북동쪽에 위치해 원경의 개방감과 초록의 산뜻함을 사계절 만끽할 수 있는 공간이다.
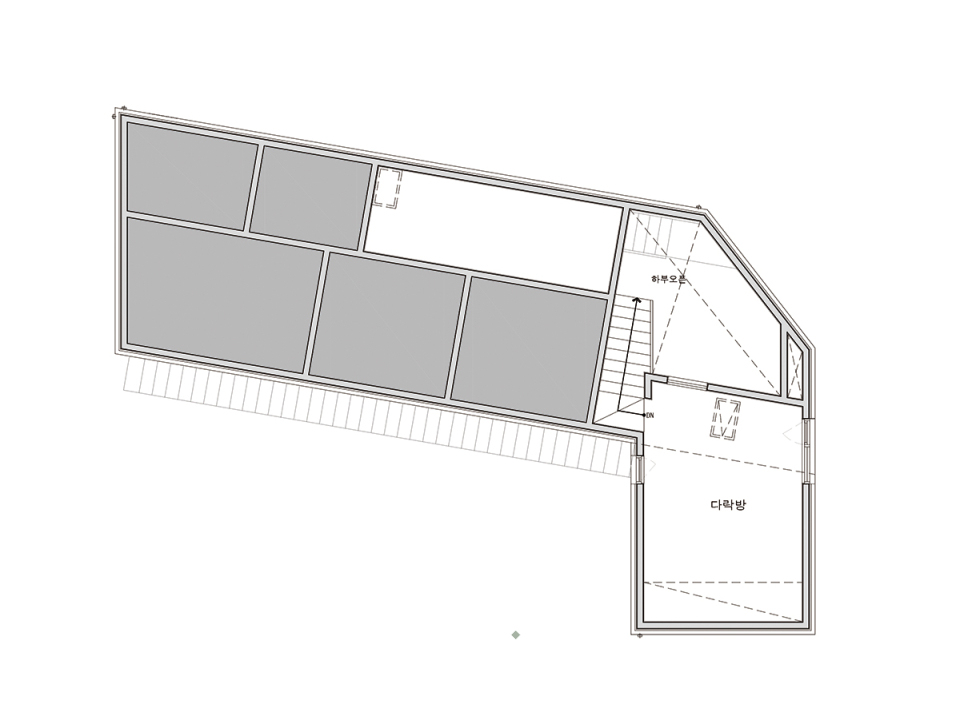
거실과 연결되어 개방감이 내외부로 극대화되어 있고, 다락과 연결돼 있는 2층의 중심 공간이다. 아이 방을 지나 가장 깊숙한 곳에 안방과 욕실, 세탁실이 위치한다. 다락은 낮지만 천창과 동서측에 창이 있어서 답답하지 않고 쾌적한다. 계단을 오를 때 공학목재로 된 보가 지나가는데 거친 느낌을 감추려고 자작나무로 감싼 것이 따뜻함을 더 해준다.
북쪽 평상 위에 천장과 펜던트를 두어 밝은 공간감을 연결하는 요소로 두고 최대한 요소를 단순화하고 줄여서 공간의 단정함을 가지려 했다.
아이들을 위한 마음 담기
“아이들이 뛰어놀 수 있는 넓은 마당이 있는 집이면 됩니다.”
화성 동탄 2지구 장지동에 토지를 구입한 30대 후반의 젊은 부부의 첫마디였다. 이렇게 공원과 접한 부지를 고르고 마당과 공원을 넘나들면서, 재밌게 놀 수 있는 아이들의 모습을 꿈꾸며 옥진재(玉振齊) 프로젝트가 대단원의 막을 올렸다.
건축주는 앞집에 의해 마당에 그늘이 지면 답답하고 어두운 집이 되지 않을까 걱정하며, 밝은 집이 되길 바라면서도, 다른 한편으로는 프라이버시는 확보해 외부의 시선에 자유롭고자 했다. 이처럼 여러 장점들을 집대성하고자 하는 마음이 바로 금성옥진(金聲玉振), 이 집의 목표이자 이름이 됐다. /나무신문
글=최성호 소하건축사사무소 대표 / 정리=서범석 기자
건축개요
대지위치▷경기도 화성시 장지동
용도지역/지구▷제1종전용주거지역(동탄2지구), 지구단위계획구역
건축구조▷경골목구조
대지면적(㎡)▷233.7
건축면적(㎡)▷96.87
연면적(㎡)▷173.35
1층(㎡) : 96.87
2층(㎡) : 76.48
다락(㎡) : 24.59
건폐율(%)▷41.45
용적률(%)▷68.34
설계▷소하건축사사무소
시공▷HNH건설
사진작가▷최수영
외부마감
지붕▷칼라강판
외벽▷클래식블랙, 드림그레이
데크(바닥)▷고흥석
실위데크▷합성목데크
내부마감
천장 및 내벽▷공용_친환경수성페인트 / 방_합지
바닥▷강마루
계단실 디딤판▷오크집성목
단열재▷지붕 및 외벽_아이씬(ICYNENE) 수성연질폼 가등급
내벽_크나우프 글라스울
창호▷레하우
현관문▷커널시스텍
주방가구(싱크대)▷나무젠
위생기구▷대림_대림이앤코
난방기구▷경동보일러_경동나비엔
최성호(소하건축사사무소 대표 건축사)
건축사 최성호는 대형설계사무소와 아뜰리에를 거쳐 오랜 기간 실무를 쌓고 2016년부터 소하건축사사무소를 시작했다. 소박하게 보여도 살아가는 이야기를 풍성하게 담을 수 있는 집을 만들고자 노력하고, 사람의 감성이 묻어나는 디자인을 추구하고 있다. 대한건축사협회, 한국목조건축협회, 한국시공학회 정회원이다. 목조건축 민간감리제도인 5스타 인증위원으로 활동하고 있으며 젊은 건축사들과 ‘건강한 집짓기’ 토크모임인 집톡(ZIPTALK)의 구성원으로 활동하고 있다. 주요 작업으로는 온정당, 이유있는가, 소복소복 하우스, 담담헌, 용인디귿집, 청라 WOOJOO, 의정부 수오재 등이 있다.
