건축주와의 만남
집은 각자의 가족들의 이야기를 담을 수 있는 공간이다. 나만의 집이다. 특히 단독주택은, 나만의 집을 구현하기는 아파트보다 좋은 조건을 가지고 있다. 그럼에도 보편적인 요소를 담지 않는다면 어색해질 수도 있다. 보편적이면서 나만의 주택을 담기 위함은 쉽지만은 않다.
2022년 두 자녀와 아파트에 살면서 ‘눈치보기 삶’이 버거워 단독주택이라는 부푼 꿈을 꾸기 시작했다고 한다. 지인을 통해 소개를 받았다. 첫눈에 봐도 세심해 보이는 아내 분과 건축과 아예 무관하지 않는 사업을 하는 남편 분은 무척이나 다정해 보였다. 또한 남편 분의 아내에 대한 사랑과, 아내 분은 남편에 대한 존경심을 향한 눈빛을 한눈에 알 수 있었다.
남자 둘 여자 둘, 2022년이라는 숫자가 주는 느낌을, 더불어 살아간다는 의미를 담고 싶었던 주택이었다. 그래서 우리집은 건축주를 만나고 바로 ‘22_zip’이 되었다.
대지 유형 및 주택 설계 방향
건축에서 가장 중요한 요소가 향인 우리 대지는 남동향을 가질 수 있는 좁고 긴 형태의 대지조건이다. 북향으로는 아직 지어지지 않은 인접지이며, 도로면으로는 마을 느낄 수 있다. 아직은 다 채워지지 않는 송산그린시티이지만 조만간 주택들이 다 만들어진다면 아마도 아름다운 마을 조망을 2층 베란다에서 누릴 수 있을 것이다. 22_zip 주변 자연경관과 어우러지도록 자연과의 관계 맺기를 시작한다. 그래서 우리 집에는 정원을 따로 계획하지 않으려 한다. 주변 자연경관을 최대한 누리려 한다.
건물 형태와 배치
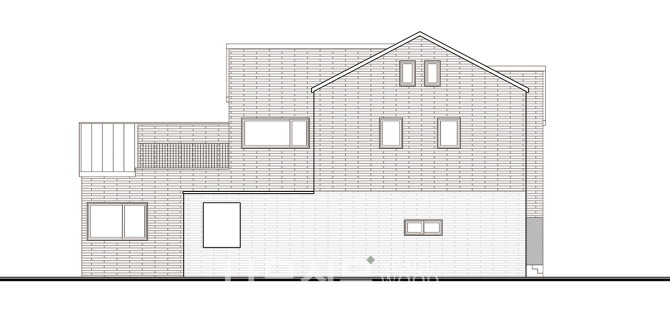
심플한 디자인을 적용했다. 건축주 부부는 상당히 밝다. 건축물 형태와 색감에서도 그것을 느끼기를 원했고, 밝은 백색 톤의 벽돌을 고려해 계획했다.
형태에서 생동감을 주기 위해 다양한 높이를 가진 주택을 계획했다. 도로면에서는 건축물이 최대한 단아하면 심플함을 가지게 했고, 우리 정원 쪽으로는 생동감을 구현했다. 정원에서 가족들이 더 다양한 외부 활동을 기원하며….
전반적인 백색 톤의 벽돌의 칼라로 단조로울 수 있는 점을 고려해 옆집과 관계를 위해 프라이빗한 가벽을 두어, 그 가벽을 통한 건축물의 형태의 단조로움을 절감할 수 있었다.
기능과 조형적 요소를 고려한 인테리어 콘셉트
사람이 머무는 주거공간에서 가장 중요한 요소는 사람들마다 다르다. 우리 22_zip은 저녁마다 함께하는 식사를 하고 이야기를 나눌 수 있는 식당이다. 엄마는 밥만 하고 아이들은 밥만 먹는 그러한 공간이 아닌 더불어 함께 할 수 있는 공간이 22_zip에는 반영됐다. 제1의 거실이자 가족실인 셈이다. 식당 앞으로 펼쳐진 선룸은 식당을 확장해 공간의 확장이 되도록 계획했다.
22_zip은 미백색의 간결한 색상을 가진다. 거기에 자연을 품을 수 있는 초록색이 계단을 타고 느낄 수 있도록 반영했다. 그 포인트 벽 상단에서 은은하게 비추는 간접조명이 그 힘을 발휘한다. 포인트벽과 함께 길에 지나다 보면 스킵의 다목적실을 만나게 되고, 그 입구는 아치의 입구를 계획했다.
공간계획 시 바람의 흐름을 고려했고, 로우세이빙 요소를 반영했다. 또 스피닝 강사인 아내 분을 고려한 공간, 단독주택에서 누릴 수 있는 아이들의 로망인 다락, 단독주택은 좋으나 벌레는 싫어하고, 동네에 뱀의 출혈 소식을 듣고, 그 해결 방안도 고려해야 했다.
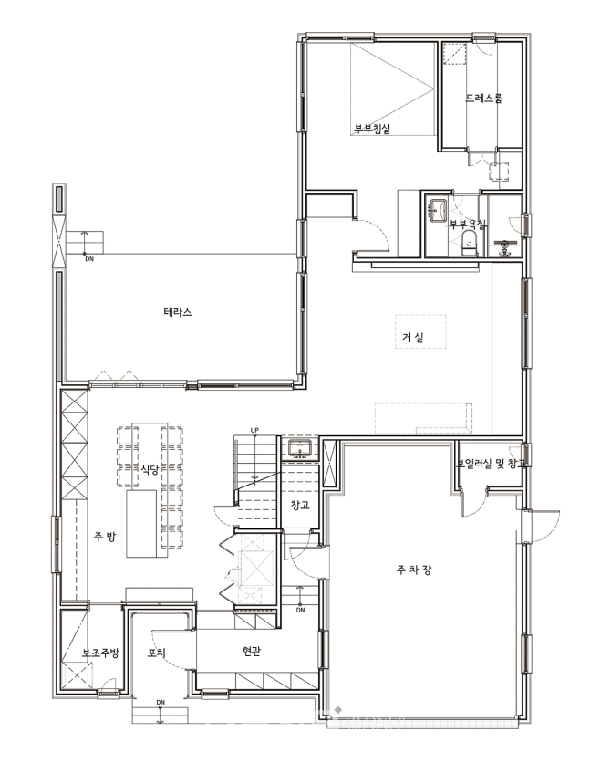
자동차는 내부 주차가 가능하도록 했으며, 살림꾼(진이살림 안주인)인 아내 분을 위한 꼼꼼한 주방동선을 계획했다. 현관문은 도로에서 바로 보이지 않도록 배치했다. 그러면서도 현관에서 마을을 바라볼 수 있는 창을 배치했다.
우리 집 1층 바닥은 도로보다 약 1.0m가량 높게 계획했다. 아무래도 도로면에 노출되는 것을 최소화하기 위해서였다.
현관을 지나 중문을 열면 우리집 식구들이 함께 식사할 수 있는 식당과 주방을 맞이하게 된다. 식당에서 펼쳐지는 조망을 누리기 위해 폴딩도어를 반영했다.
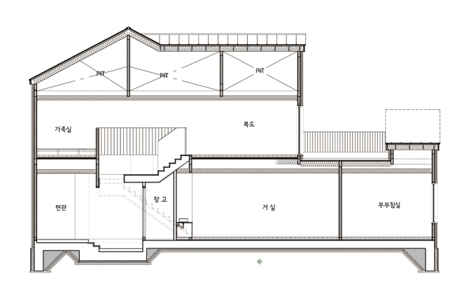
식당을 지나면 2층으로 올라갈 수 있는 집의 중심부에서 계단을 만난다. 계단이 22_zip의 포인트다. 또 거실은 단독주택의 묘미인 오픈천정을 가진다. 거실에 배치되는 TV는 아트월에 매입될 수 있도록 고려했다.
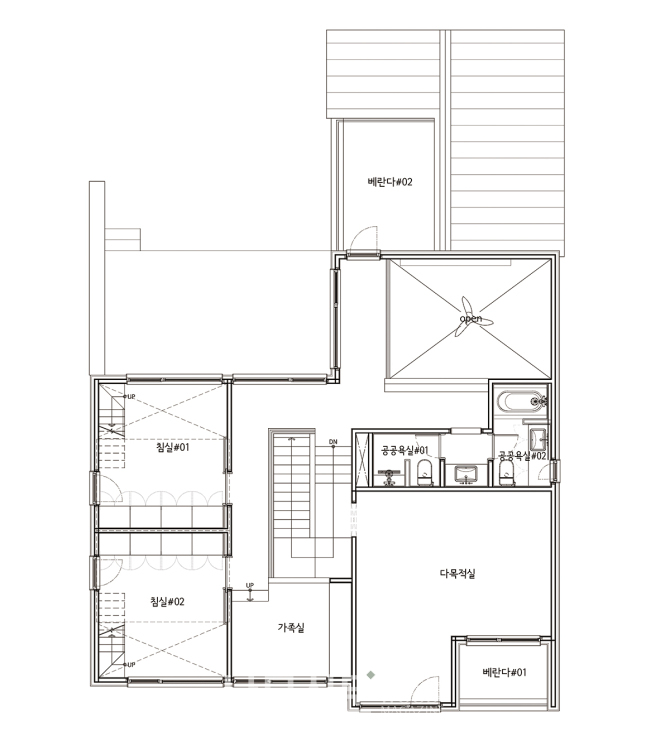
그리고 부부침실, 2층을 올라가는 중간에 아내 분의 운동공간 겸 다목적실인 주차장 상부에 스킵플로어 형식으로 계획됐다. 22_zip이 가장 끝까지 고민한 2층의 욕실은 건식 세면대 겸 파우더룸을 두고 양쪽으로 욕실이 2개를 계획했다. 태권소년과 태권소녀의 취향을 고려한 욕실이다.
태권소녀는 욕조에서 피로를 푸는 것을 즐긴다. 태권소년은 이제 중학생이 되는데 최대한 빠른 샤워를 끝내기 위해 샤워실과 양변기만 배치됐다.
그 욕실들을 지날 때마다 오픈천정을 가진 거실이 내려다 보인다. 엄마 아빠는 아이들의 행동반경을 어느 정도 파악할 수 있다. 아직은 오빠에게 의지하는 여동생은 각자의 방을 가지고 있고, 각자 다락을 가지고 있다. 하지만 잠자는 동안 무서워할 여동생을 위해 다락에서 서로 만날 수 있도록 문을 계획했다. 다락에서는 각자 잠자는 공간을 계획했고, 방에서는 취미활동 및 공부를 할 수 있는 공간으로 반영했다.
중간의 계단을 지나 아이들 방을 지나면 또 다른 소가족실을 만날 수 있다. 이곳에서 한옥에서 누릴 수 있는 툇마루를 계획했다. 좀 더 높은 시선으로 마을을 볼 수 있도록 한 곳이다.
우리 22_zip은 두 가지의 베란다를 계획했다. 다목적실에서는 마을 조망용, 부부침실 위쪽으로 자연을 품을 수 있는 베란다, 이렇게 두 가지를 가졌다.
완공된 이후 눈이 펑펑 내리던 날 아내 분이 베란다에서 찍은 자연경관이 너무도 아름다웠다. 이런 변화무쌍한 날씨를 함께 누릴 수 있는 것이 바로 주택살이다.
주택에서는 대체적으로 정원을 갖춘다. 우리 22_zip은 최소한의 정원만 계획했다. 주변에서 정원관리가 어렵다는 이야기를 너무 많이 들은 듯한다. 가장 아쉬운 요소 중에 하나이지만, 이미 우리집의 경우는 자연을 품고 있어 해소할 수 있지 않았을까 한다. 글=㈜단감 / 정리=서범석 기자 /나무신문
건축개요
위치▷경기도 화성시 새솔동
용도지역/지구▷제1종전용주거지역, 지구단위계획구역(송산그린시티)
구조▷일반목구조
대지면적▷368.00㎡
건축면적▷161.38㎡
건폐율▷43.85%
연면적▷233.70㎡
용적률▷53.21%
1층(주택면적)▷104.78㎡
2층(주택면적)▷91.03㎡
주차장▷37.89㎡
확장면적(발코니)▷68.47㎡
설계▷㈜단감 & MW건축사사무소(주)
설계자▷감은희, 대표건축사 송은경, 박승화, 이나영
시공▷㈜단감종합건설(대표 윤하성)
중목구조 프리컷▷삼익산업
사진작가▷이남선
자재개요
지붕▷징크 마감
외벽▷롱브릭벽돌마감
내부 천장▷친환경페인트
내벽▷ 친환경페인트
바닥▷원목마루, 자기질 타일
지붕 단열▷에코뱃RSI6.5(가등급)
외단열▷비드법2종1호(가등급)
중단열▷크나우프인슐레이션(다등급)
계단실 디딤판▷원목(북미산 레드오크)
계단 난간▷철제난간, 유리난간
창호▷살라만더
현관▷일진게이트
조명▷건축주 발주
주방기구▷리빙플러스
위생기구▷아메리칸스텐다드, 폰타나
난방기구▷린나이
건축가 소개
감은희 (주)단감 대표
단감건축사사무소는 탁월한 건축 및 인테리어 디자인과 기술력으로 국내 목조건축 발전을 견인하고 있다. 특히 소규모 건축시장의 바른 방향과 지속가능한 건축을 연구하는데 힘쓰고 있다. 단순히 건축물을 만드는데 그치지 않고 고객과 함께 건강한 건축 환경을 만들어 사회에 기여하는 것이 우리 단감의 사명이다. 또 사람 중심 건축의 목표를 가지고 고객과의 신뢰를 무엇보다도 중요하게 생각하는 기업이다.
감은희 소장은 홍익대학교 건축도시전문대학원 도시설계 석사 이후 현재 홍익대학교 건축학과 박사과정 중이다. 주요 경력으로는 △JTBC '내 집이 나타났다' 중목구조전문가 출연 △SBS '좋은아침' 안전제일하우스 출연 △SBS '좋은아침' 랭킹쇼 출연 △여성건축가협회 정회원 △한국목조건축협회 정회원 △한국목조기술협회 정회원 △한국도시설계학회 정회원 △한국건축가협회 정회원 등이 있다. 주요 프로젝트로는 △프랑스 건축가 협업 타운하우스 - 용인 「Loire Valley」 △판교 주택 「同幸」 , 「미소드리움」 등 △양양 골든비치 리조트 「설해원 마운틴스테이」 △평창 상가주택 「SKI ZONE」 △서울 은평 협소주택 등이 있다.
