키 큰 자작나무 61그루가 있는 ‘L/J 자작나무하우스’. 건축주는 유년시절부터 나무를 유달리 좋아했다. 오랜 세월 지치지 않는 나무의 생명력에서 느껴지는 자연의 위대함이 좋았다. 집을 짓게 되자 주저 없이 더 커질 자작나무를 집 둘레에 심었고, 자신과 아내의 성을 딴 이름 ‘L/J 자작나무하우스’라는 이름을 붙였다.
이웃에게도 선물 같은 집
건축주는 “자작나무 숲에 들어서면 들리는 바람소리 그리고 그 소리를 쫓아 바라보게 되는 하늘은 지친 하루를 위로받는 기분 좋은 기억이 된다”며 “이런 작은 희열을 이웃들과도 나누고 싶다”고 했다.
이처럼 자작나무숲에 부는 바람처럼 고운 심성 때문이었을까, 집을 지으면서 흔히 발생하는 이웃들과의 마찰이 이 현장에서는 없었다. 오히려 집을 다 지은 다음 이웃집 꼬마가 연필로 꾹꾹 눌러쓴 엽서와 화분 선물이 도착했을 정도다.
건축주는 여의도에서 40여 년 동안 국내외 증권과 자산운용사에서 종사해 왔으며, 증권사 대표를 지낸 후 지금은 자산운용사를 창업해서 경영하고 있다.
아내와의 사이에 1남2녀를 두고 있는데, 자녀들은 모두 성장해서 의사와 영국 유학 후 일러스트 작가, 회사원 등으로 독립해 살아가고 있다. 때문에 L/J 하우스는 건축주 부부가 주로 거주할 목적으로 공간을 구성하면서, 가끔 이곳을 찾을 자녀들을 위한 공간을 별도로 두었다.
정신적 성장을 꿈꾸는 자의 단층집
건축주는 집을 지으려는 이유에 대해 “내가 가진 본질적 정서와 몹시 다른 가혹한 자본시장 일을 하다 보니 늘 마음이 허전해지고 건조해졌다. 어린시절 화가를 꿈꿀 정도로 그림을 좋아했지만 오랫 동안 몸담았던 일은 계산적이고 삭막한 다른 세계였기에 그림을 통해 나만의 세계를 구현할 수 있는 자유분방함을 얻고 싶었다”면서 “이 집에서는 하는 일을 최소화한 후 그림을 그리고 진정한 나를 반추해보면 또다른 정신적 성장을 꿈꾸고 싶다”고 말했다.
‘최대한 자연과 어우러지는 동화 같은 집’이 건축주가 원하는 집이다. 이를 위해 공간별로 꼭 담고자 했던 것들이 있는데, 아파트에서는 느낄 수 없는 수직적 공간감이 있는 거실, 유명산 뷰를 잘 담아내며 카페와 같은 분위기를 느낄 수 있는 주방, 반신욕을 좋아하는 아내를 위한 욕조 옆 낮은 창이 있는 욕실 등이다. 나무를 좋아하 는 만큼 예산 범위 내에서 조경에도 신경을 썼다.
자녀들을 모두 출가시키고 건축주 내외만 거주할 주택이기 때문에 면적에 대해 크게 할애를 하지 않고자 했다. 거기에 더해 건축주의 나이 등을 고려해서 2층이 아닌 단층주택으로 제안해 진행했다.
산모양을 모티브로 한 입면
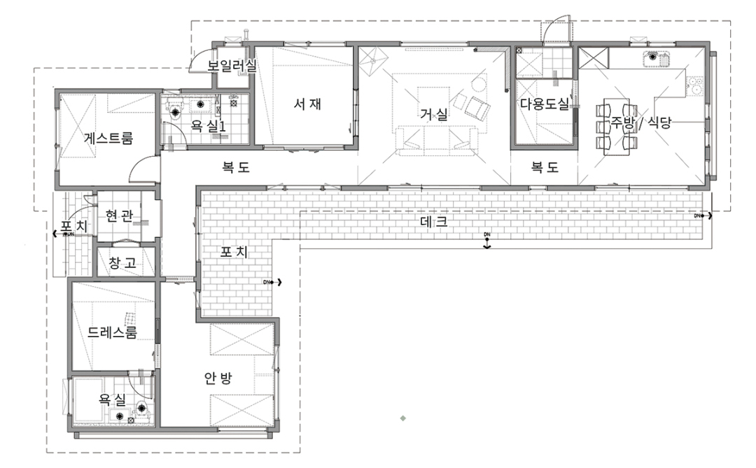
도로보다 낮은 레벨의 대지 형태상 프라이빗 마당을 확보하기 위해선 가벽을 세우거나 높은 식수를 심는 등 다양한 방법이 있었지만, 결과적으로 건물의 형태로 이 부분을 커버하기 위해 역 ‘ㄱ’자 형태의 평면 조닝이 됐다. 이 부분은 자연스럽게 진출입 부분 엔트리 마당과 거실 앞 프라이빗 마당으로 분리가 됐다.
현관 앞 복도를 중심으로 평면상 왼쪽 부분은 프라이빗 공간, 오른쪽은 공용공간으로 분리해 명확하게 공간분리를 했다. 건물 뒤편으로 산새(스카이 라인)와 어울리는 형태를 취하고자 돌출이나 볼륨이 있는 매스 형태는 지양했으며, 산 모양을 모티브로 입면 디자인을 계획했다.
창밖 풍경이 인테리어가 되는 여백
내부 인테리어는 화이트&우드의 마감재를 사용해 편안함을 느낄 수 있는 공간 연출에 초점을 맞추었다. 가장 특징적인 부분은 공간의 힘을 실은 인테리어 요소를 넣기보다는 창과 창밖 풍경이 인테리어가 될 수 있도록 여백을 살렸다. 깨끗한 마감과 전체적으로 일관성 있는 무드를 살리고자 했다.
대신 현관 중문의 경우 전반적인 인테리어 무드에 맞는 원목 슬라이딩도어를 적용했으며, 욕실도 어둡고 중후한 이미지보다는 따스한 분위기를 낼 수 있는 타일과, 이에 어울리는 하부장을 제안하게 됐다.
외벽은 스타코플렉스 베이스에 세라믹사이딩을 포인트로 시공했으며 이질적인 재료가 만나는 부분은 징크로 재료분리를 명확하게 함으로써 뚜렷한 이미지를 연출했다.
데크는 흔히들 많이 하는 현무암 데크보다는 베이지톤의 마천석 세라믹 타일로 마감해 건축물과 조화를 이루었다.
시공 상의 주안점
대지는 남한강 근처 자연환경이 굉장히 좋은 곳이다. 주변으로 산새가 좋아 뷰가 훌륭하고, 또 높은 건물이 없어 향에서도 이점이 많은 곳이다. 경의중앙선 아신역에서 차량으로 10분 거리에 위치해 있어, 주변 도시로 나갈 때 대중교통도 좋은 편에 속한다.
아울러 개발행위허가를 받는 대지면적보다 실제 소유하고 있는 앞마당까지 합하면 꽤 큰 면적의 땅이다. 다만 인접해있는 도로보다 레벨이 낮은 땅이기 때문에 도로에서 건축주의 땅이 한눈에 다 보이는 불리한 점이 있었으며, 이 부분은 곧 프라이버시를 확보해야 하는 요소로서 자연스럽게 설계의 주안점이 됐다.
아울러 세라믹사이딩 시공 공법상 외부 EPS 단열재 사용이 불가하다. 중부2지역 단열 기준에선 140㎜ 두께의 인슐레이션으로 충분했지만, 단열 효과를 더 충분하게 하기 위해 세라믹사이딩 시공 부분에는 투습방수지 대신 스카이텍 8T를 추가 시공했다. /나무신문
건축개요
건축구조▷중목구조
대지면적▷996.00㎡ (301.29평)
건축면적▷136.92㎡ (41.42평)
연면적▷125.72㎡ (38.03평)
외벽재▷스타코 플렉스_#311 Moonlight / KMEW 세라믹 사이딩_16T - NH4756A
지붕재▷오웬스코닝 아스팔트 이중그림자 슁글_OnyxBlack 검정색
내장재▷실크벽지, 원목마루
적용사항▷현관문_Modern Calm(모던캄) Series / 캄 월넛 / 외소대 계폐 가능
창호_알루플라스트 39mm 3중유리 독일식 창호
한다움건설
다양한 주거, 상업시설의 건축사업을 운영하고 있는 주택 전문 시공사다. 시대가 원하는 트렌드와 고객의 니즈를 진심으로 이해하고 사람의 감성과 새로운 건축 기술을 조화한 가치를 제공하는데 의미를 두고 있다. 합리적인 목재 소비를 지향하며 경량목구조 외에도 국내 최다 수준의 중목구조 설계, 시공 포트폴리오를 보유하고 있다. 투명하고 스마트한 건축문화를 선도하고자 맞춤 견적 시스템 및 스마트 건축 플래너 등 고객 니즈에 맞춘 다양한 건축시스템과 같은 끊임없는 기술 개발과 경영 혁신을 추구하며, 일하는 즐거움과 보람을 가지고 최고의 가치를 고객에게 제공하고자 한다.
