‘^^_하하집’은 웃는 모습을 상징하는 ^^을 모티브로 했다. 집이 들어설 대지의 형상과 향, 공간의 특성을 고려한 매스형태를 서로 기댄 듯 혹은 고스란히 웃는 인상을 그려낸 결과다. 하지만 황혼의 어머니와 그녀의 건축주 가족들에게서 공통으로 보이는 웃음이 배어있는 얼굴을 보는 순간 ‘^^_하하집’의 형상은 이미 정해져 있었는지도 모른다.
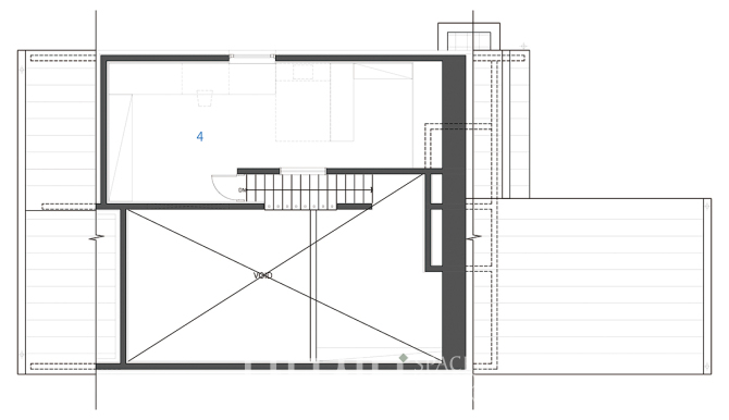
2개의 ㅅ자 공간
논 한가운데 위치한 평평한 대지는 남북으로 길게 형성돼어 있고 동측 방향으로는 인접대지와 계단식의 레벨차를 두고 있다. 인접한 건물이 없어서 집의 4면 모두가 사방에 노출되어 있다. 동측으로는 멀리 큰 길과 마을이 훤히 보이고 남측은 햇볕이 좋고 서측은 건축주의 언니 집에서 잘 보인다. 추후 오가는 길이 될 곳이고 북측은 진입로가 위치해 결국 4면 모두가 정면과 같은 입면을 가져야 했다.
‘ㅅ’자 2개가 엇갈려 겹쳐진 형태인 ^^_하하집은 크게 두 개의 공간으로 구분된다. 동측에 남북으로 긴 ㅅ자 공간은 거실, 주방·식당, 서재 등 가족이 모일 수 있는 공적공간이고 서측에 남북으로 긴 ㅅ자 공간은 사적인 침실을 계획했다.
현관을 지나면 곧바로 1층 혹은 2층으로 향할 수 있다
1층의 공적인 ㅅ자 공간엔 거실과 주방·식당을 계획했다. 거실은 가족 모두가 사용하기 편리하도록 빛이 잘 들고 전망이 좋은 남측에 주방·식당과 오픈 연계되어 있다.
소파 대신 평상(하부 수납)을 계획해 평상에 앉아 TV도 보고 주방에서 일하는 따님과 도란도란 이야기도 하며 편안히 누워 쉴 수도 있다. 급작스레 방문하는 손님들도 얼마든지 수용 가능하다. 사적인 ㅅ자 공간엔 노모가 사용하기 편리하도록 어머니방과 화장실은 바로 인접하되 파우더룸을 지나면서 거실과 공간적으로 분리했다.
1층에서 다락방으로 이어지는 계단실은 ㅅ자가 겹쳐진 면에 위치한다. 창(개구부)과 창이 중첩되어 내외부공간의 깊이를 더하며 마치 순백의 벽을 캔버스 삼은 오크목재의 얇은 세로선이 그림을 그려낸 듯하다.
2층의 공적인 ㅅ자 공간엔 다량의 책과 각종 미술품, 장식품을 수용할 수 있는 서재와 화장실이 있다. 서재는 취미실이나 공부방, bar, 남측의 벽을 스크린삼아 영화관이 되기도 한다.
책장 가운데의 앉은뱅이 창은 이 집의 드라마틱한 공간을 제공한다. 사적인 ㅅ자 공간엔 건축주의 침실과 미니주방, 내외부를 연결하는 발코니가 있다. 남측의 발코니는 따듯한 햇살에 차 한 잔 할 수 있고 북측의 발코니는 출입구와 필로티를 향해 있으며 서측의 돌출발코니는 언니 집을 향해 손짓할 수 있는 공간이다.
사적인 ㅅ자 공간 최상부엔 9평 남짓의 다락방이 있다. 경사지붕이 만드는 아늑한 공간에 동측의 사선창이 인상적인 외관을 형성한다. 침대에 누워서 해와 달과 별을 볼 수 있는 시적인 공간이랄까? 다락방은 공사 초기 건축주 아들의 합류로 3대가 함께 사는 집으로 바뀌었다.
깊이감이 더해진 중첩된 창
엇갈린 형태는 단순히 공간만 구분하는 것이 아니다. 그 겹친 면에는 층을 연결하는 계단이 있고 서로의 공간을 넘나드는 중첩된 ‘창(개구부)’이 있다.
‘창’은 2개의 다른 공간을 투영한다. 중첩된 창은 2개, 4개 혹은 6개의 공간을 다른 깊이로 투영한다. 이는 언제든 공용공간과 소통할 수 있도록 유도한다. 사적인 영역은 보호하되 가족이 서로 대화하고 1,2층의 오픈된 공간을 다양한 시각으로 경험할 수 있게 한다. 어쩌면 그동안 다르게 살아온 가족들의 삶을 반추하는 의미도 있으리라.
파티가 가능한 필로티 공간
주차장 공간으로 계획한 필로티는 주차는 물론 비나 눈에 관계없이 파티를 할 수 있는 공간이다. 그야말로 단독주택이 누릴 수 있는 특권이랄까? 바비큐 등 요리를 할 수 있고 텃밭에서 기른 채소는 수돗가에서 손질하고 주렁주렁 채소도 걸어 말릴 수도 있다. 많은 사람들이 앉을 수 있는 긴 벤치, 흥이 넘치는 공간이다. 1층의 주방과 2층의 서재, 발코니에서도 필로티 공간을 볼 수 있다.
건축주, 건축사, 시공사의 소통
건축주가 대화가 잘 되는 건축사를 찾듯이 시공사도 마찬가지다. 매일매일 공사 사진을 공유하며 설계의도 대로 혹은 시공 중 부득이 발생하는 문제들을 함께 협의하고 결정해나갔다. 이렇게 각자의 역할에 충실하며 소통하니 설계와 시공 과정은 오히려 건축주에게 색다른 즐거움을 안겨주었다. 건축주, 건축사, 시공사 모두 다 같이 웃는 ^^_하하집은 이런 소통에 의한 작품이다. /나무신문
DIAGRAM
PLAN
건축개요
위치▷경기도 양평군 양서면
주요 구조▷경골목구조
건축 용도▷단독주택
대지면적▷394㎡
건축면적▷92.13㎡
연면적▷150.16㎡
규모▷2층
건폐율▷23.38%
용적률▷38.11%
외장 마감재▷붉은벽돌
외부데크▷루나우드
내부 마감재▷벽지, 강마루(오크)
건축사무소▷플라잉 건축사사무소 FLYING ARCHITECTURE
책임 건축가 :서경화 Seo Kyoung Hwa
구조▷두항구조안전기술사사무소
기계▷코 담기술단
전기/통신▷시엔에스엔지니어링
인테리어▷플라잉 건축사사무소
시공▷케이에스하우징
사진작가▷송정근
건축가 소개
건축사 서경화
대한민국 건축사이자 미국친환경기술사(LEED AP)이다.
2012년 ‘신나는 공간 여행’을 모토로 플라잉건축사사무소를 설립했다. 설계를 진행하는 모든 과정이 ‘설렘’이듯 건축주와 이런 느낌을 오롯이 공유하는 것이 무엇보다 가치 있는 일이라고 믿는다.
유쾌한 반전을 좋아하고 우연이 만드는 인연에 즐거워하며 복잡함 보다는 단순함(SIMPLICITY)이 주는 명쾌함에 끌리고 여유라는 이름의 다른 하나인 유머(HUMOR)를 공간에 담고자 한다.
2014년부터 동료 건축사들과 ‘말 많은 건축사들’의 건강한 집짓기 토크쇼인 ‘집톡(ZIPTALK)’에 참여해 일반인과 건축의 접점을 찾고 있다. 제24회, 26회 경기도 건축문화상을 수상했고, 책으로 <99하우스>가 있다.
