고<姑>
“대지를 등지고 보는 풍경이 주변에서 제일 높았다. 대지는 또 울퉁불퉁하고 딱딱해 보이는 돌담을 바탕으로 도로보다 높게 형성돼 있었다. 문득, 이러한 대지를 바라보고 있으니 고(高)자가 들어가는 제목의 집을 지어보고 싶다는 생각이 들었다.”
충청남도 아산시 배방읍 회룡리 솔치마을에 위치한 대지에 대한 건축가의 첫 인상이다.
우연일지 필연일지, 이러한 생각을 가지고 있던 설계자는 이 집에 고부(姑婦)가 함께 살 예정이라는 소식을 들었다.
건축가는 “제각각의 크기, 제각각의 형태로 서로를 끈끈하게 지탱하고 있는 돌담 위에 짓는 집이기에, 그리고 흔히들 어려운 관계라고 생각하는 고부(姑婦)의 관계를 건축을 통해 아름답게 풀어나간다면 더 이상 어려운 관계, 어려운 건축이 아닌 아름다운 집을 지을 수 있을 것 같다는 희망이 생겼다.”
부<婦>
얼핏 보면 커다란 하나의 집으로 보이는 고부가는 시어머니와 며느리가 따로 또 같이 이루는 작은 공동체를 추구하는 집이다.
부부와 시어머니가 따로 또 같이 살아가야 할 공간인 만큼 서로의 프라이버시를 존중해야 할 필요가 있다고 느꼈다. 그 안에서도 아예 다른 두 개의 집을 짓는 것은 아니기에, 서로의 ‘프라이버시와 조화로움’ 두 가지 토끼를 잡을 수 있는 건축이 되어아만 했다고 건축가는 생각했다. 각각의 개성과 취향을 존중하면서도 조화로운 관계에 중점을 둔 이유다.
가<家>
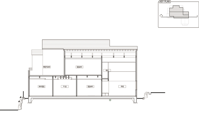
집에 들어왔을 때 좌측으로는 간단하게 손을 씻을 수 있는 화장실이 위치해 있고 앞쪽으로 보이는 거실은 높은 층고로 디자인 돼 탁 트인 개방감을 준다.
부엌은 고부(姑婦)가 따로 또 같이 자주 사용하는 곳인 만큼 시어머니의 취향인 목재와 며느리의 취향인 현대적 느낌의 소재를 적절하게 배치했다. 이로써 부엌이라는 공간을 이용해 다양한 소통의 장이 되도록 했다. 오른쪽으로 보이는 간이 놀이공간 내부는 대부분이 수납공간으로 형성돼 있다.
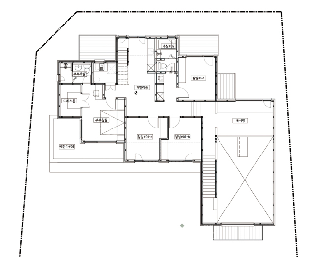
거실에서 바라보는 박공 형태 윈도우시트는 고부가의 중점적인 디자인 포인트다. 거실에서 올라와 마주하는 2층은 주로 독서 및 작업공간으로 이루어져 있으며 이곳 또한 윈도우시트를 설치해 보다 많은 수납공간과 휴식을 취할 수 있게 디자인 했다.
시어머니가 주로 이용하는 공간은 대부분이 화이트의 컬러와 목재의 조합으로 이루어져 있고, 곳곳에 건축주의 취향에 맞춰 여러 아이템들을 배치했다. 무엇보다도 수납공간을 확보하는 것에 중점을 두었다. /나무신문
건축개요
위치▷충남 아산시 배방읍
지역지구▷계획관리 지역
전면도로▷남,북측도로 6M
대지면적▷548.00㎡
건축면적▷191.87㎡
연 면 적▷359.92㎡
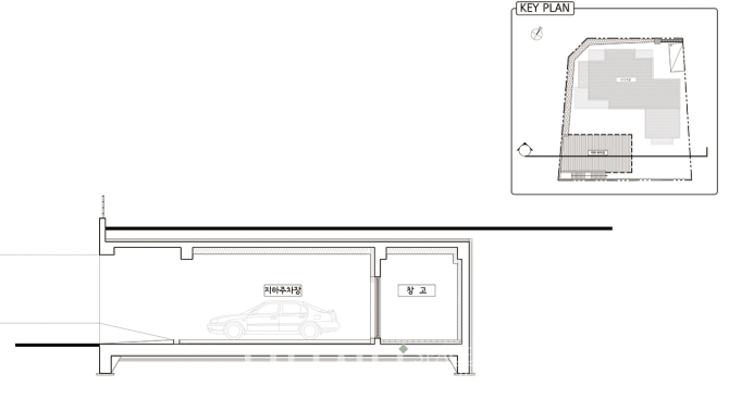
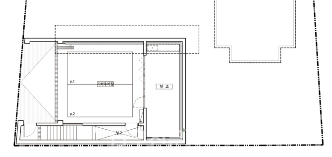
지하 1F : 주택 면적19.50㎡, 주차장 면적 60.90㎡ 총 80.40㎡
1F : 169.40㎡
2F : 110.12㎡
다락 : 56.78㎡
건폐율▷법정 40% 계획 35.01%
용적률▷법정 100% 계획 51.01%
건축물 높이▷10.091m
자재정보
구조재▷주건축물_일반목구조 / 부속건축물_철근콘크리트구조
지붕마감재▷갈바늄
외벽마감재▷외부용 롱브릭타일, 화이트우드
바닥▷원목마루, 자기질 타일
창호재▷독일 시스템 창호 살라만더
설계 및 시공▷(주)단감건축사사무소 (주)단감종합건설
사진제공▷단감건축사사무소(이남선 사진작가)
건축가 소개
감은희 (주)단감 대표, 건축가
단감건축사사무소는 탁월한 건축 및 인테리어 디자인과 기술력으로 국내 목조건축 발전을 견인하고 있다. 특히 소규모 건축시장의 바른 방향과 지속가능한 건축을 연구하는데 힘쓰고 있다. 단순히 건축물을 만드는데 그치지 않고 고객과 함께 건강한 건축 환경을 만들어 사회에 기여하는 것이 우리 단감의 사명이다. 또 사람 중심 건축의 목표를 가지고 고객과의 신뢰를 무엇보다도 중요하게 생각하는 기업이다.
감은희 소장은 홍익대학교 건축도시전문대학원 도시설계 석사 이후 현재 홍익대학교 건축학과 박사과정 중이다. 주요 경력으로는 △JTBC '내 집이 나타났다' 중목구조전문가 출연 △SBS '좋은아침' 안전제일하우스 출연 △SBS '좋은아침' 랭킹쇼 출연 △여성건축가협회 정회원 △한국목조건축협회 정회원 △한국목조기술협회 정회원 △한국도시설계학회 정회원 △한국건축가협회 정회원 등이 있다. 주요 프로젝트로는 △프랑스 건축가 협업 타운하우스 - 용인 「Loire Valley」 △판교 주택 「 同幸 」 , 「 미소드리움 」 등 △양양 골든비치 리조트 「 설해원 마운틴스테이 」 △평창 상가주택 「 SKI ZONE 」 △서울 은평 협소주택 등이 있다.
