만화제의 구상은 2017년 봄, 한 대학에서 2년 후 정년을 앞 둔 건축주가 보낸 메일로부터 시작됐다.
그는 대학 졸업 후 유학과 해외에서의 교수 생활, 귀국 후 포항의 한 대학에서의 교직까지 47년 간의 외지 생활을 마치고, 아내와 함께 귀향을 계획하고 있었다.
자연스럽게 과거를 거슬러 마을과 집에 대한 이야기를 듣게 되었다. 마을은 신작로를 경계로 커다란 삼각형을 이루고, 삼각형 중점에 해당하는 위치에 낮은 언덕을 배경으로 그의 옛집이 있었다.
그는 지금은 경작지가 되어버린 상수리나무 언덕과 저수지, 길을 따라 줄지어 서 있던 히말라야시더가 있는 마을의 풍경에 대한 기억을 이야기했다.
주변에서 가장 규모가 있던 이 집의 200년 넘은 안채는 건축주에게 중요한 기억의 장소다. 그는 훼손된 마을 풍경의 회복과 오래된 안채의 재생에 대한 조심스러운 속내를 내비췄다.
오래전 많은 가족과 이웃들로 북적였을 옛집으로부터 두 사람만을 위한 거주공간으로 재탄생시키는 작업은 과감하게 밀도를 들어내는 일을 전제로 한다.
낮은 밀도의 건축과 최소한의 장치만으로 과거의 느슨한 중정의 공간구조를 재현하며, 동네 풍경의 일부가 되는 방법에 대해 고민한 결과는 다음과 같다.
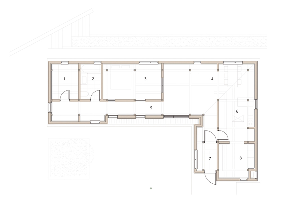
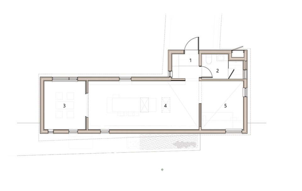
200년 넘은 안채는 예산을 고려해 현대적인 공법을 접목해 재생한다. 동서로 긴 사랑채는 목재의 부후가 심해 해체하고, 대문을 경계로 두 개의 작은 방을 갖는 서재와 주차장으로 채를 나누어 배치한다.
주차동은 목재 표면을 가지고 있어 스터코 마감의 안채, 서재동과 대비되도록 한다. 배치에서 디테일에 이르기까지 집을 이루는 혼성적인 성격은 현실적인 대안이면서 마을과 구별되기보다 일부로 작동하도록 의도된 것이다.
200년 된 한옥의 현대적인 재생
해체 과정에서 상량문이 발견되지 않아 정확한 건립연도를 확인하지 못했으나, 건축주의 분석에 의하면 안채의 나이는 200년 이상으로 추정된다.
일반적으로 한옥의 모듈은 불규칙적 인데 비해 만화재 안채의 기둥 모듈은 엄정하다. 예산 추사고택의 모듈이 그러한데 조선 후기의 형식화되는 성리학의 영향으로 여겨진다. 주인의 세계관이 담긴 집의 격을 잘 드러내는 특징이다. 오랫동안 관리를 소홀히 한 탓에 서까래는 대부분 재생이 어려워 보였다. 기둥과 보를 이루는 고재의 테스트 결과 60% 정도 재활용이 가능해 보였다.
옛 한옥의 보존과 재생 사이에서 경제성과 가치를 고려한 다소 복합적인 제안을 했다. 현대적인 공법의 외피와 재생한 한옥의 기둥과 보 구조의 조합은 하나의 유형이 될 수 있다. 안채를 해체해 부재마다 위치를 기억할 수 있도록 일련번호를 부여하고, 최대한 본래의 위치에 재배치하되 손상되거나 부족하면 덧대어 연결했다.
재생이 불가능한 기둥, 보는 집성목(Glulam)으로 대체 되었다. 외피는 경골목구조시스템 피막을 적용했다. 두 구법의 경계에는 안쪽에 노출된 서까래(Rafter)인데 부정형한 형태의 한옥 보와 연결하는 데는 도리를 매개로 애매함을 조정했다.
글 = 조남호 소장 / 정리 = 서범석 기자
건축개요
위치▷경기도 이천시 모가면
용도▷단독주택
대지면적▷1532㎡
건축면적▷173.09㎡
연면적▷173.09㎡
규모▷지상1층
높이▷4.5m
주차▷2대
건폐율▷11.29%
용적률▷11.29%
구조▷한식 목구조, 경골목구조
외부마감▷스타코, 일부 적삼목사이딩
내부마감▷석고보드 위 수성페인트
설계▷솔토지빈건축사사무소(조남호)
설계담당▷최수영
구조설계▷라임구조
시공▷수피아건축
기계·전기설계▷코담기술단
사진작가▷윤준환
건축가 소개
조남호 소장 (주)솔토지빈건축사사무소
솔토지빈(率土之濱)은 시경(詩經) 북산지계편의 시귀절로써 ‘온누리’라는 뜻이다. 거친 자연을 인간이 살아가기 위해서는 건축을 통한 상보가 필요한 반면, 건축이 자연의 일부가 되기 위한 노력 또한 필요하다. 이를 위해 다양한 요구로부터 자연을 닮은 인간중심의 환경을 창출해 가는 것이 솔토지빈이 추구하는 프로페셔널리즘이다.
