경기 시흥 은계지구 ‘희원’(바랑 희希, 으뜸 원元)은 1층에 상가가 있는 다가구주택이다. 주택은 주인 세대를 포함한 다섯 세대가 들어서 있다.
건축주는 슬하의 자녀를 모두 혼인시킨 중년 부부다. 오래 전에 분양 받아 놓은 토지에 안정적인 임대수입을 올릴 수 있는 실거주 상가주택을 신축하기를 원했다.
주변에는 이미 수많은 상가주택들이 빼곡하게 들어서 있는 상태. 그들 상가주택들과 잘 어울리면서도 차별화되고 돋보이는 디자인을 추구했다. 또 부부의 안락한 일상생활과 자녀와 손주들이 왔을 때 넉넉한 내부 공간을 필요로 했다. 아울러 임대를 놓게 될 다른 세대들 모두에 독립된 발코니를 넣었다.
한편 시흥 은계지구는 택지개발 지구로서, 주변의 아파트 단지와 각종 인프라가 현재 한참 구축되고 있는 미완성 도시다. 희원이 들어선 대지는 306㎡ 크기의 네모반듯한 땅이다. 앞뒤로 도로를 면하고 있으며, 양쪽 모두에서 진입이 가능하다. 또 정북일조 사선제한으로 인해 주변 건물들이 비슷한 형태를 취하고 있다.
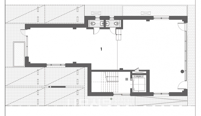
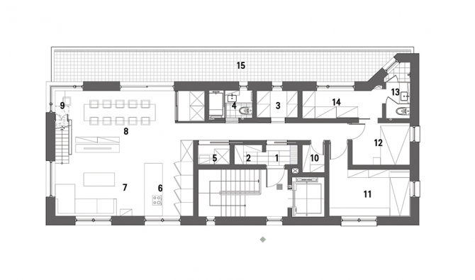
건물은 지상 4층 200여 평 규모이며, 전면 도로와 후면 도로에서 모두 접근이 가능하다. 1층은 상가, 2,3층은 임대세대, 3층은 집주인의 주거공간으로 각각 꾸며졌다.
외형은 최대한 심플한 형태의 디자인을 추구했다. 그러면서도 마감재료인 벽돌의 쌓기 방식에 변화를 줌으로써 건물 표면의 다양한 질감과 디테일을 만들어 냈다. 이는 또 그만그만한 상가주택의 정글 속에서도 돋보이는 ‘희원’을 완성하는 요인으로 작용했다.
실내는 많은 재료와 색상을 사용하지 않고 주로 화이트 톤과 목재 고유의 따듯한 느낌을 살려내, 이들이 잘 어우러질 수 있도록 했다.
건축개요
위치▷경기도 시흥시 은계지구
용도▷다가구주택(5가구)+근린생활시설
대지면적▷306㎡연면적▷593.2㎡
규모▷지상4층
구조▷철근콘크리트조
자재▷치장벽돌(삼한씨원), 징크패널, 이플러스 알미늄창호
공동설계▷(주)유타건축사사무소 김창균+(주)건축사사무소 오브 양정원
시공▷(주)시스홈종합건설
사진▷스튜디오집(정우철)
유타건축사사무소
건축은 한 명의 생각으로 끝나지 않는 협동작업의 연속이다. 작지만 강한 실험적인 조직, 그리고 즐거운 공간을 만드는 사무실이고 싶다. 보여지기 식의 독특한 디자인보다 가장 평범한 것이 가장 비범한 결과를 만든다는 것에 확신을 가진다. 주어진 각기 다른 조건 내에서 최대한 솔직하고 명쾌하게 공간을 구성하고, 재료 하나하나의 접합과 만짐을 소중하게 생각한다. 차별화되고 선도적인 디자인은 바로 우리 주변, 우리 도시에 존재하는 지극히 평범한 건축물에서 시작된다.
지난 시간도 그렇고 앞으로로 유타건축은 건축주와 함께 건강한 집, 따뜻한 공간을 가진 도시내 건축물을 만드는데 일조 하고자 한다. 그리고 내부적으로는 지금의 척박한 건축계를 넘어 후배 건축가들이 자생하며 좋은 작업을 할 수 있는 토양을 만드는 것이 장기적인 목표이다.
건축사사무소 오브AUBE
오브의 작업은 도시와 건축의 접점에서부터 시작한다. 건축의 사회적 역할과 책임에 주목하고, 도시 환경에서 건강하게 작동하는 건축적 해법과 방법을 제안한다.
우리는 전통건축인 한옥에서부터 현대건축을 다루는 작업까지 범위를 규정하지 않고, 다양한 건축적 실험과 도전을 이어간다. 보이지 않는 개념에 잠식되어버린 건축을 지양하고, 건축의 본질적 가치인 공공성과 사용성이 담긴 디테일이 풍부한 건축을 만드는데 집중한다.
시스홈종합건설
새건축사협의회, 한국건축가협회에서 7년연속 ‘건축명장’에 선정된 (주)시스홈종합건설은 상가주택, 단독주택, 목구조물 및 목재 조경시설물 등을 시공하고 있다. 이 회사 이국식 대표는 (사)한국목조건축협회 회장, (사)목재비파괴연구소 이사를 맡고 있다.
